10/10
Paylaş
Resmi Orjinal Boyutunda Göster
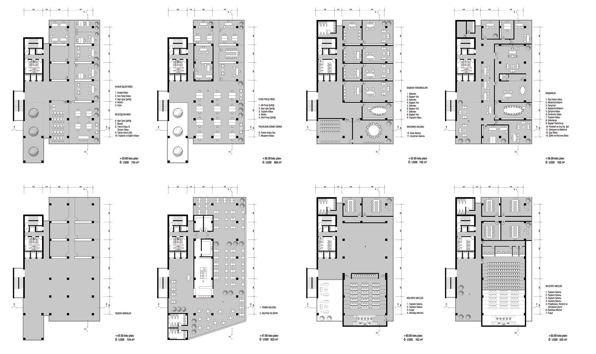
Erkan Erdoğan Mimarlık, Denizli Belediyesi Hizmet Binası ve Çevresi Mimari Proje Yarışması
Project Location: Denizli
Project Office: Erkan Erdoğan Mimarlık
Project Type: Belediye Hizmet Binası
Proje Tipi Grubu: Satın Alma
Tasarım Ekibi: Erkan Erdoğan, Selçuk Güllü, Aykut Bülbül
Project Start Date: 2009
Project End Date: 2009