27/29
Paylaş
Resmi Orjinal Boyutunda Göster
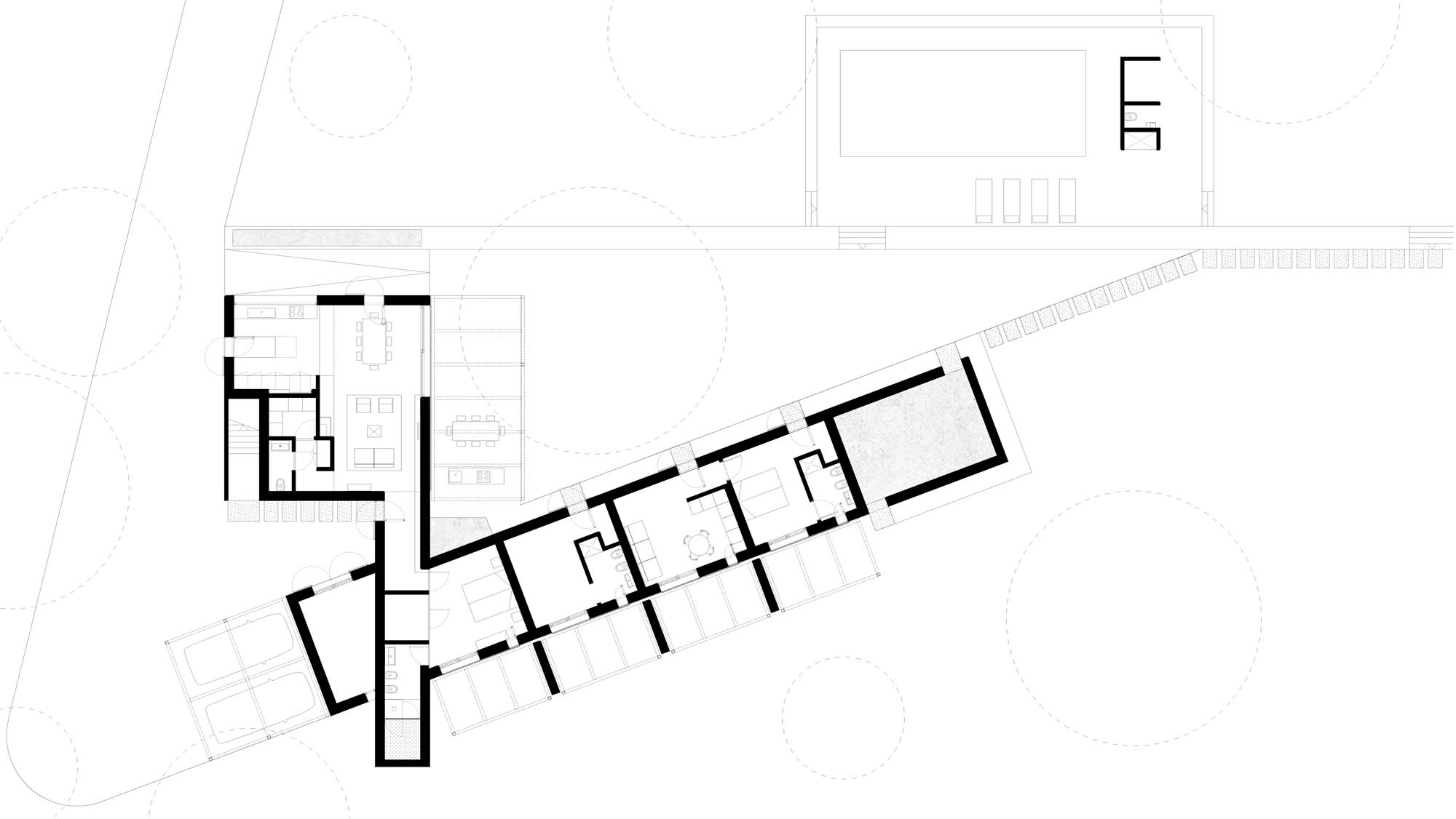
Uliveto Evi
Project Location: Carovigno, İtalya
Project Office: Noname Studio
Project Type: Single House
Proje Tipi Grubu: Konut
Tasarım Ekibi: Andrea Perego, Görkem Güvenç, Francesco De Felice
Yardımcı: Annalisa Cinco, Jessica Martinez, Sevilay Erk
Architectural Supervision: Francesco Cavallo
Project Start Date: 2014
Project End Date: 2021
Construction Start Date: 2019
Construction End Date: 2021
Building Plot Area: 10.500 m2
Total Construction Area: 170 m²