3/9
Paylaş
Resmi Orjinal Boyutunda Göster
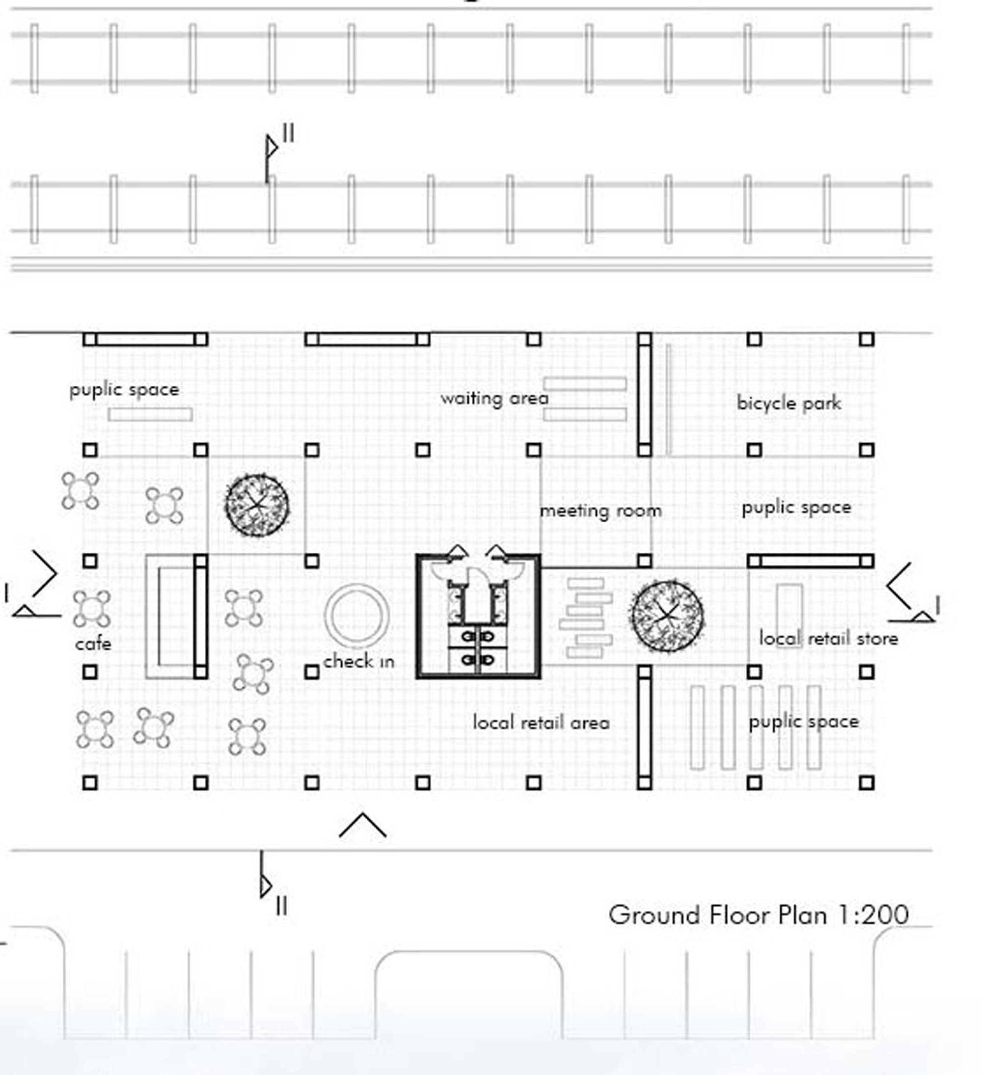
Re-Imagining Railway Stations Connecting Communities
Proje Yeri: İngiltere
Proje Tipi: İstasyon / Durak
Proje Tipi Grubu: Ulaşım, Katılımcı
Tasarım Ekibi: Ömer Özeren, Edibe Begüm Özeren
Proje Başlangıç Yılı: 2020