16/25
Paylaş
Resmi Orjinal Boyutunda Göster
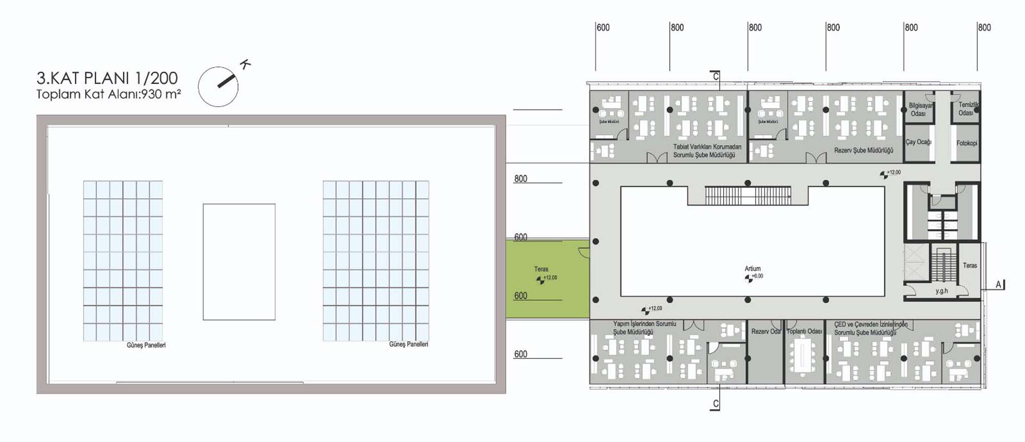
Katılımcı, Ömer Özeren, Edibe Begüm Özeren, Kamu Binaları Fikir Yarışması
Proje Yeri: Konya
Proje Tipi: Belediye Hizmet Binası, Kültür Merkezi
Proje Tipi Grubu: Katılımcı
Tasarım Ekibi: Ömer Özeren, Edibe Begüm Özeren
Proje Başlangıç Yılı: 2018