19/21
Paylaş
Resmi Orjinal Boyutunda Göster
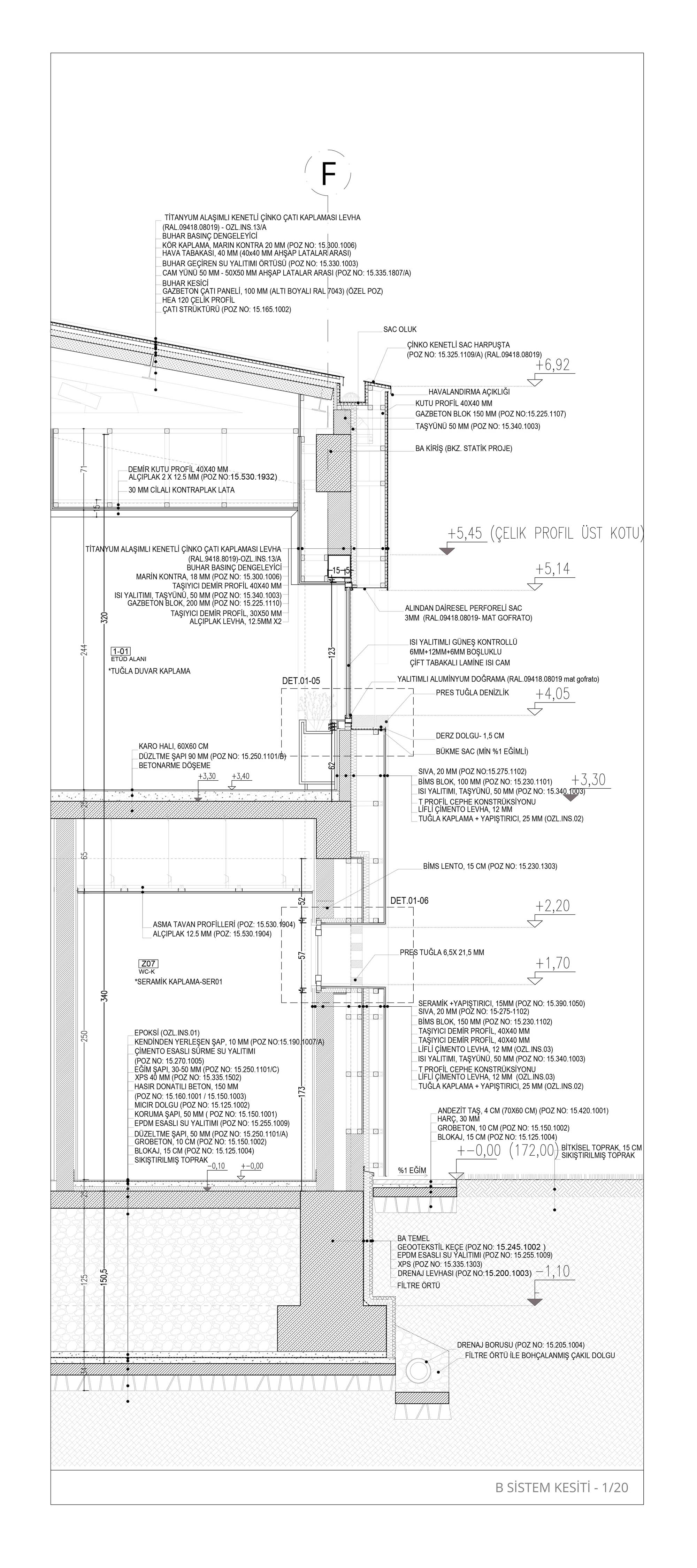
Çerkezköy Kent Kütüphanesi
Proje Yeri: Çerkezköy, Tekirdağ
Proje Ofisi: KAAT Mimarlık
Proje Tipi: Kütüphane
Proje Tipi Grubu: Kamu
Tasarım Ekibi: Lebriz Atan Karaatlı, Sacit Arda Karaatlı
İşveren: Çerkezköy Belediyesi
Danışman: Sezin Beldağ
Yardımcı: Naz Akdemir, İzel Kavuzlu
Proje Yöneticisi: Sezin Beldağ
Aydınlatma Projesi: MAK Enerji
Statik Projesi: Nedim Ülkücü
Mekanik Projesi: Ente Mühendislik
Elektrik Projesi: Mak Enerji ve Danışmanlık
Tesisat Projesi: Ente Mühendislik
Çelik Projesi: Nedim Ülkücü
Altyapı Projesi: Ente Mühendislik
Proje Başlangıç Yılı: 2020
Proje Bitiş Yılı: 2020
İnşaat Başlangıç Yılı: 2021
Arsa Alanı: 1.520 m²
Toplam İnşaat Alanı: 890 m2