20/27
Paylaş
Resmi Orjinal Boyutunda Göster
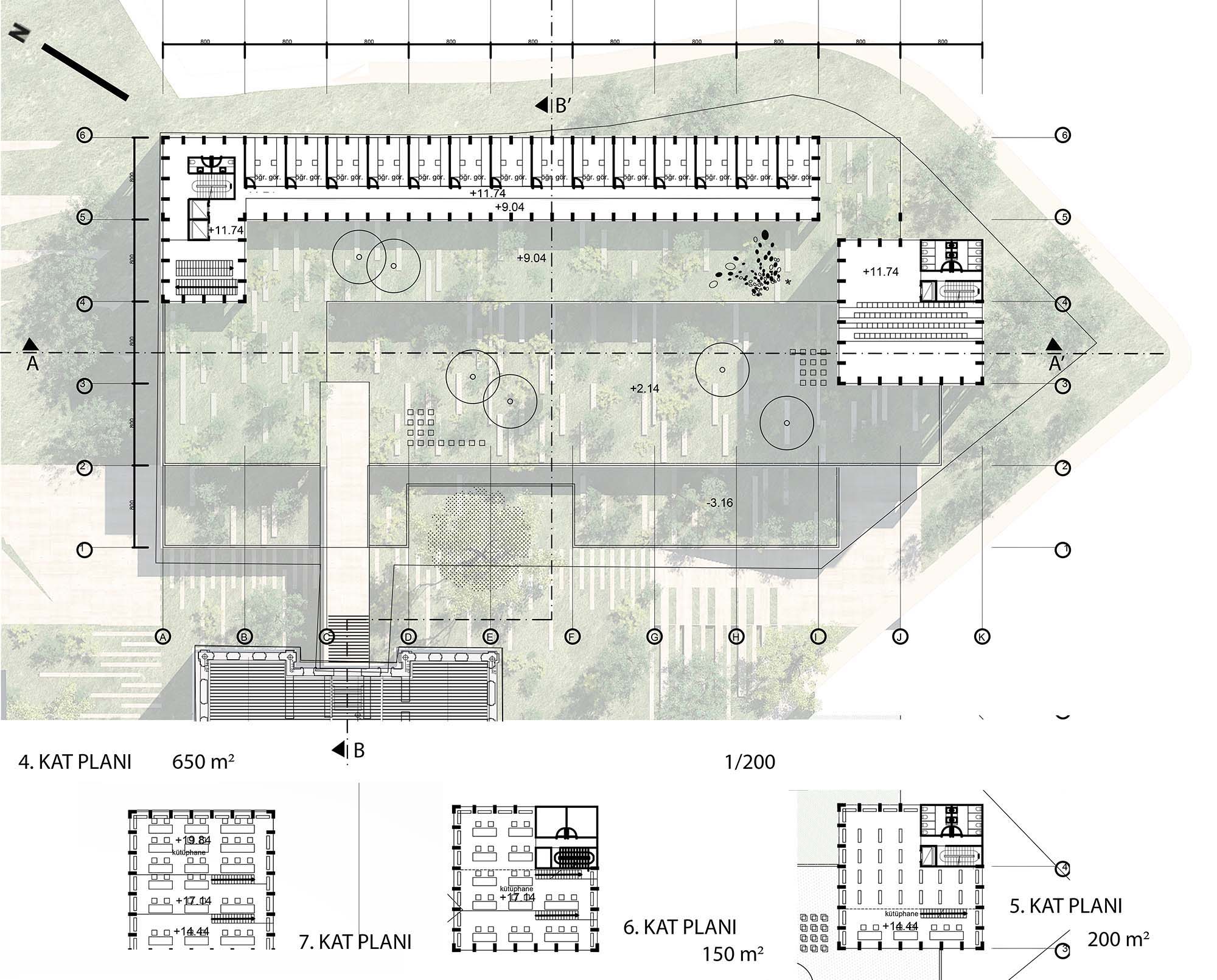
Katılımcı, MVDY Mimarlık, İTÜ İşletme Fakültesi Mimari Proje Yarışması
Proje Yeri: Beşiktaş, İstanbul
Proje Ofisi: MVDY Mimarlık
Proje Tipi: Üniversite Kampüsü
Proje Tipi Grubu: Katılımcı
Tasarım Ekibi: Didem Yavuz Velipaşaoğlu, Mert Velipaşaoğlu