16/21
Paylaş
Resmi Orjinal Boyutunda Göster
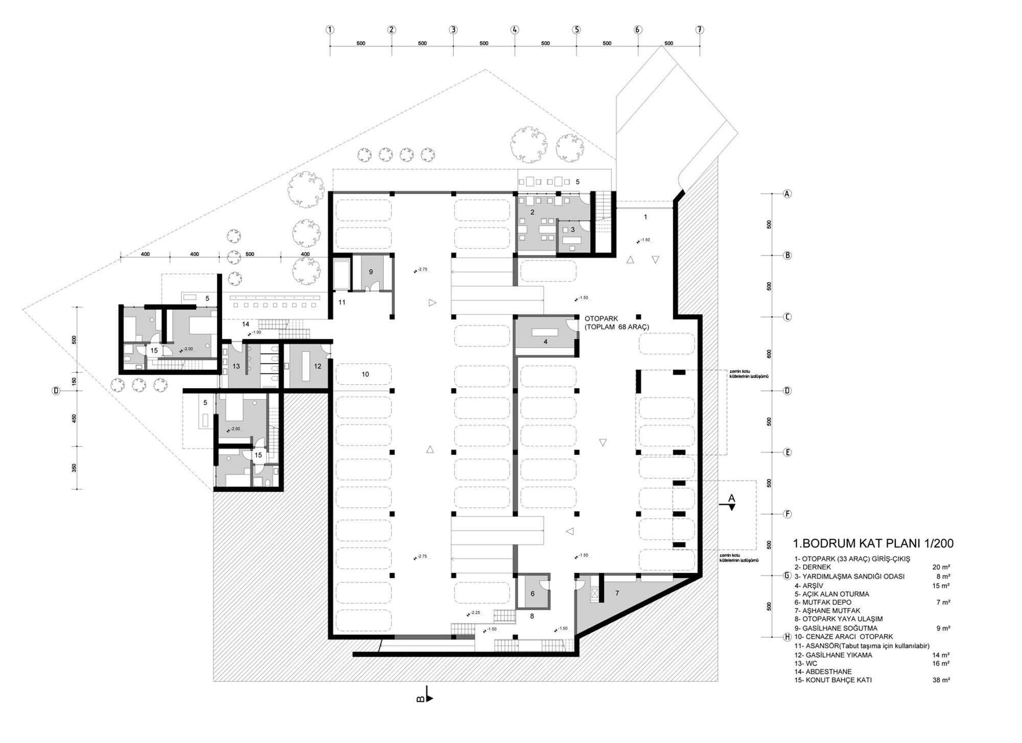
3. Mansiyon, MVDY Mimarlık, Halide Edip Adıvar Külliyesi Ulusal Mimari Proje Yarışması
Proje Yeri: Şişli, İstanbul
Proje Ofisi: MVDY Mimarlık
Proje Tipi Grubu: 3. Mansiyon
Tasarım Ekibi: Mert Velipaşaoğlu, Tuberk Altuntaş, Melis Eyüboğlu Altuntaş
İşveren: Şişli Belediyesi
Statik Projesi: Bora Kacar
Proje Başlangıç Yılı: 2012
Proje Bitiş Yılı: 2012