31/31
Paylaş
Resmi Orjinal Boyutunda Göster
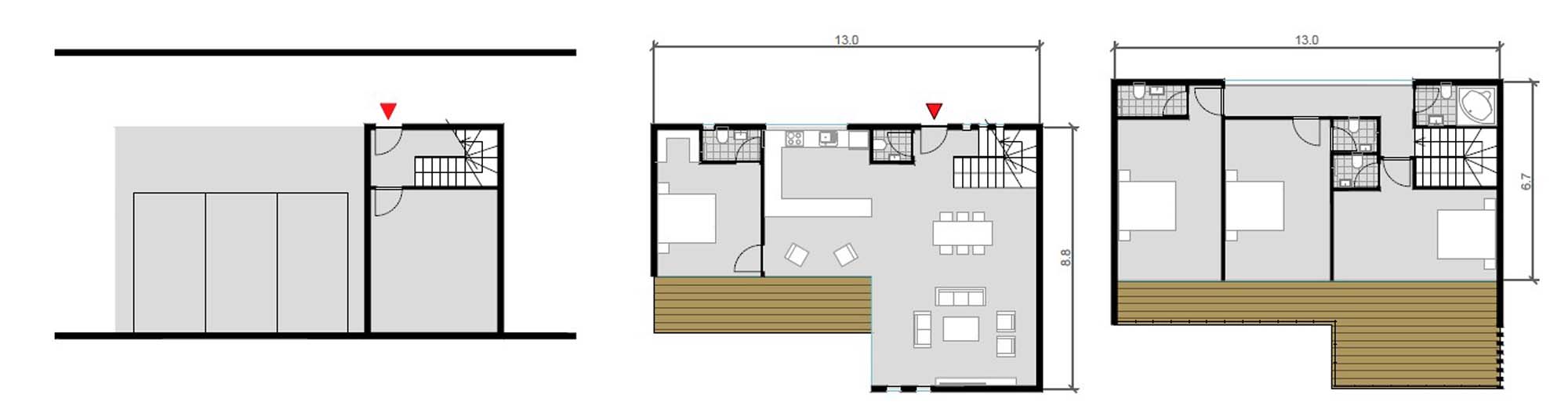
Park Villa
Project Location: alacaatlı, Ankara
Project Office: MVDY Mimarlık
Project Type: Housing Complex
Proje Tipi Grubu: Konut
Tasarım Ekibi: Mert Velipaşaoğlu, Didem Yavuz Velipaşaoğlu
Employer: Hanra İnşaat
Project Start Date: 2020
Project End Date: 2020