18/18
Paylaş
Resmi Orjinal Boyutunda Göster
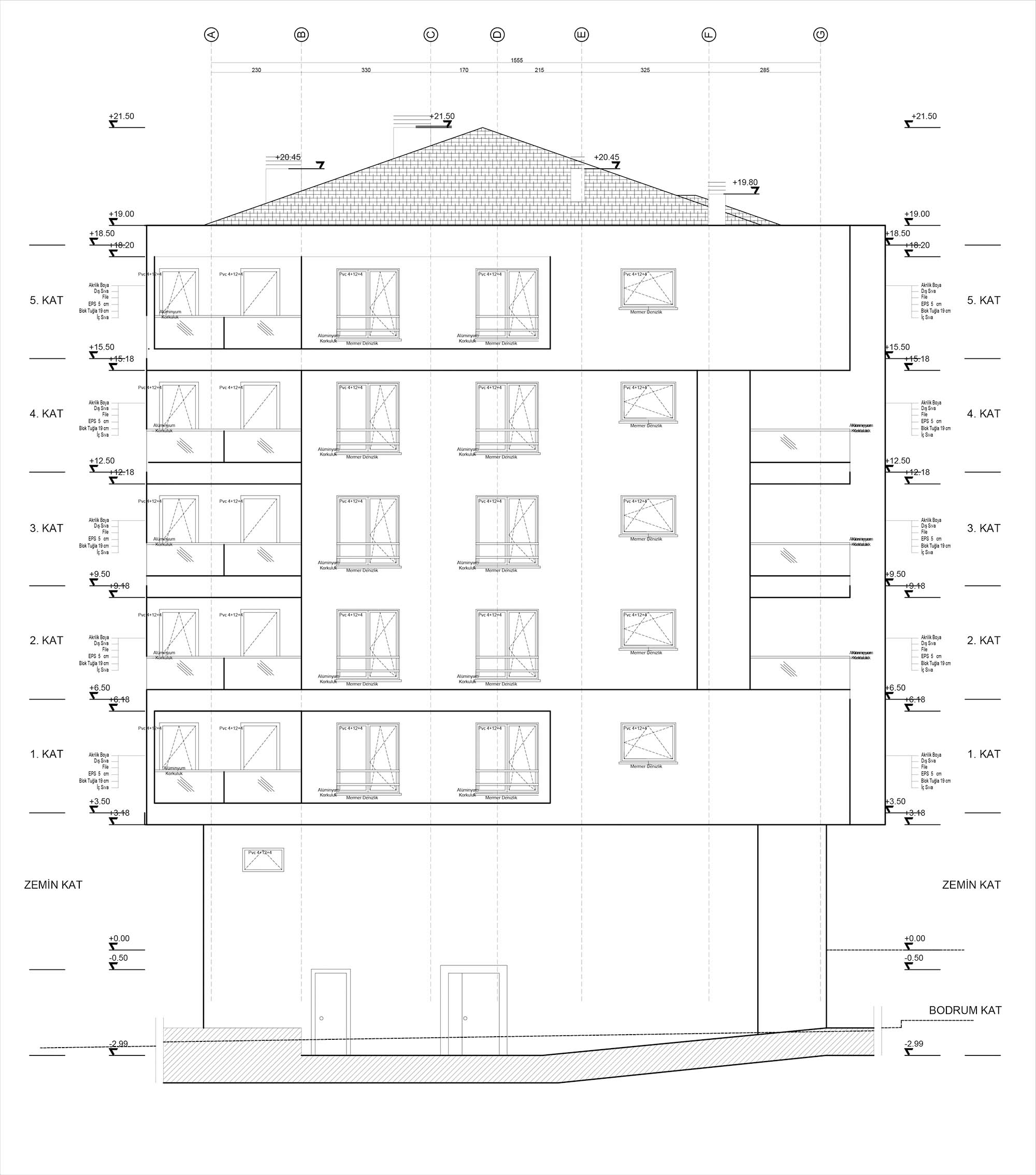
Dilek Akagün Apartmanı
Proje Yeri: Uşak
Proje Ofisi: Berk Yapı Mimarlık
Proje Tipi: Apartman
Proje Tipi Grubu: Konut
Tasarım Ekibi: Tansu Oktay, Hayrullah Oktay
İşveren: Celaleddin Şen
Ana Yüklenici: Berk Yapı Mimarlık
Statik Projesi: Hakan Yıldız
Mekanik Projesi: Dinçer Özkaba, Yüksel Kalıpçı
Elektrik Projesi: Mehmet Perçin
Proje Başlangıç Yılı: 2018
Proje Bitiş Yılı: 2019
İnşaat Başlangıç Yılı: 2019
İnşaat Bitiş Yılı: 2021
Arsa Alanı: 865 m²
Toplam İnşaat Alanı: 2.226 m2