15/18
Paylaş
Resmi Orjinal Boyutunda Göster
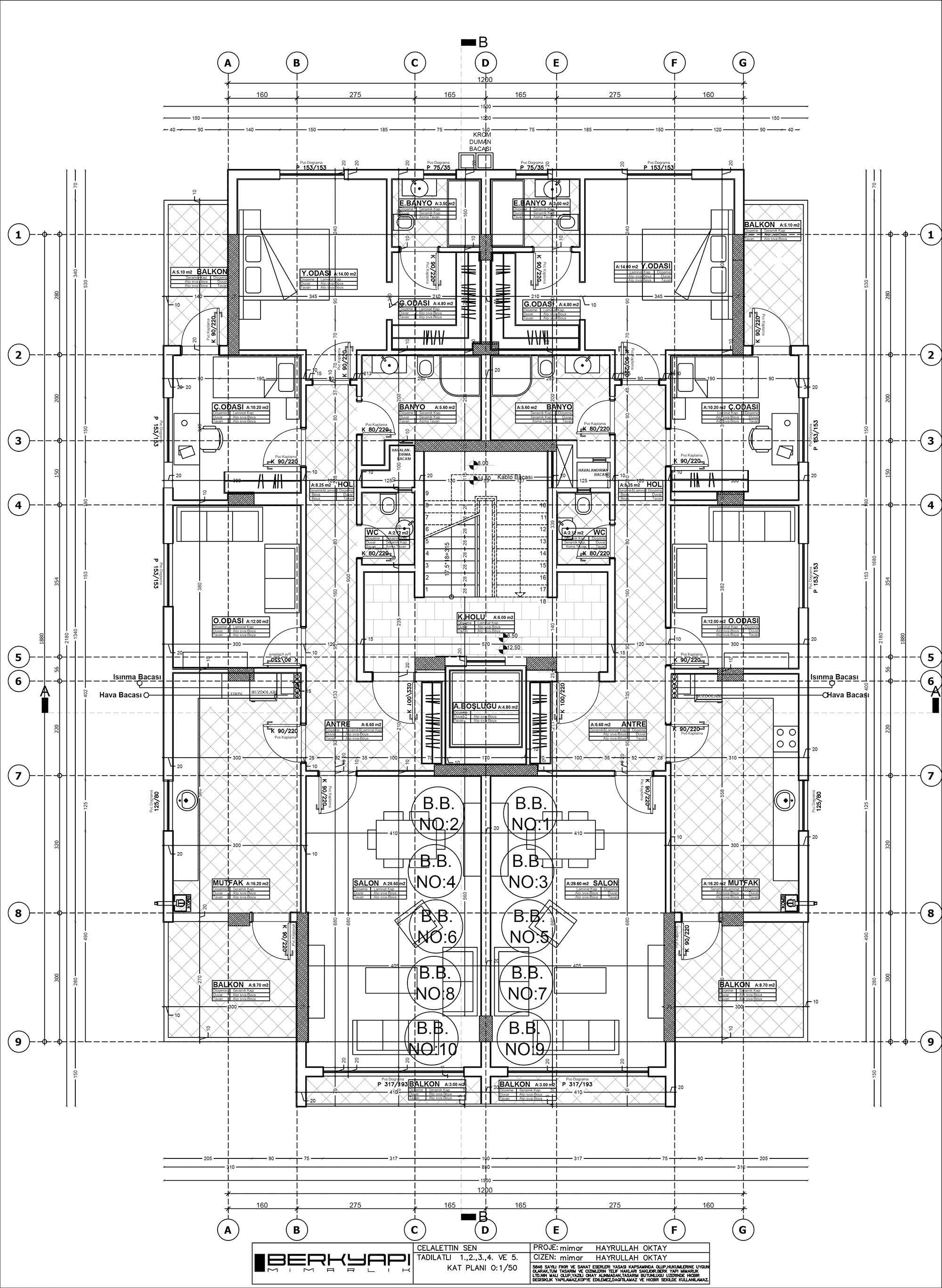
Apartman No16
Project Location: Uşak
Project Office: Berk Yapı Mimarlık
Project Type: Apartment
Proje Tipi Grubu: Konut
Tasarım Ekibi: Tansu Oktay, Hayrullah Oktay
Employer: Celaleddin Şen
Ana Yüklenici: Berk Yapı Mimarlık
Structural Project: Hakan Yıldız
Mechanical Project: Dinçer Özkaba, Yüksel Kalıpçı
Electrical Project: Mehmet Perçin
Project Start Date: 2017
Project End Date: 2018
Construction Start Date: 2018
Construction End Date: 2020
Building Plot Area: 816 m2
Total Construction Area: 2.020 m2