36/53
Paylaş
Resmi Orjinal Boyutunda Göster
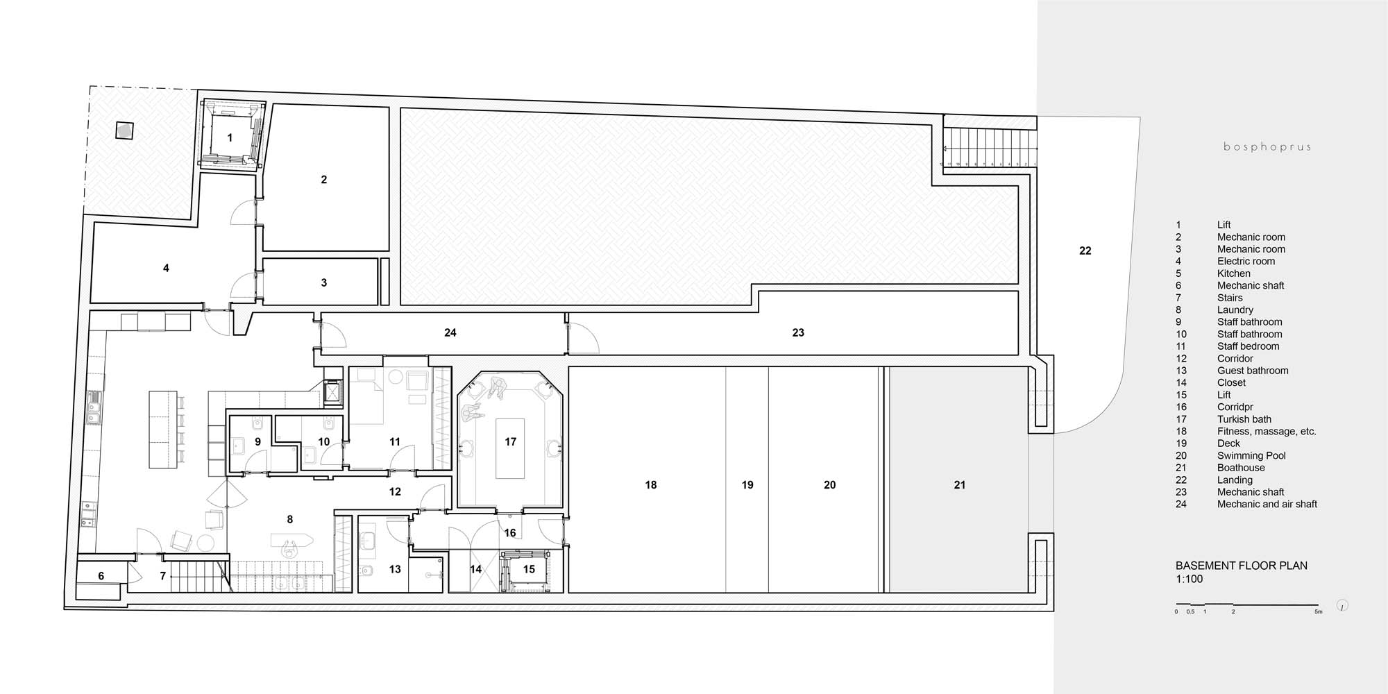
Zarifi Mustafa Paşa Yalısı Grup Köşkü Rekonstrüksiyon Proje ve Uygulaması
Proje Yeri: Beykoz, İstanbul
Proje Ofisi: Beysun Mert Mimarlık
Proje Tipi: Tek Ev / Villa
Proje Tipi Grubu: Konut
Tasarım Ekibi: Beysun Mert
Yardımcı: Cenap Doğan, Amra Alik, Ezgi Erkan
Ana Yüklenici: Beysun Mert Mimarlık
Proje Yöneticisi: Beysun Mert
Aydınlatma Projesi: Tepta Aydınlatma
Statik Projesi: ATTEC
Mekanik Projesi: Tanrıöver Mühendislik, 3EN Mühendislik
Elektrik Projesi: Göller Elektrik
Tesisat Projesi: Tanrıöver Mühendislik
Altyapı Projesi: Murat Ozan Tut
Fotoğraf: Beysun Mert Mimarlık, Studio Majo
Mimari Mesleki Kontrollük: Beysun Mert
Şantiye Yöneticisi: Osman Nuri Taşkın, Emine Sarı
Proje Başlangıç Yılı: 2013
Proje Bitiş Yılı: 2015
İnşaat Başlangıç Yılı: 2015
İnşaat Bitiş Yılı: 2018
Arsa Alanı: 622 m²
Toplam İnşaat Alanı: 1.212 m²