34/35
Paylaş
Resmi Orjinal Boyutunda Göster
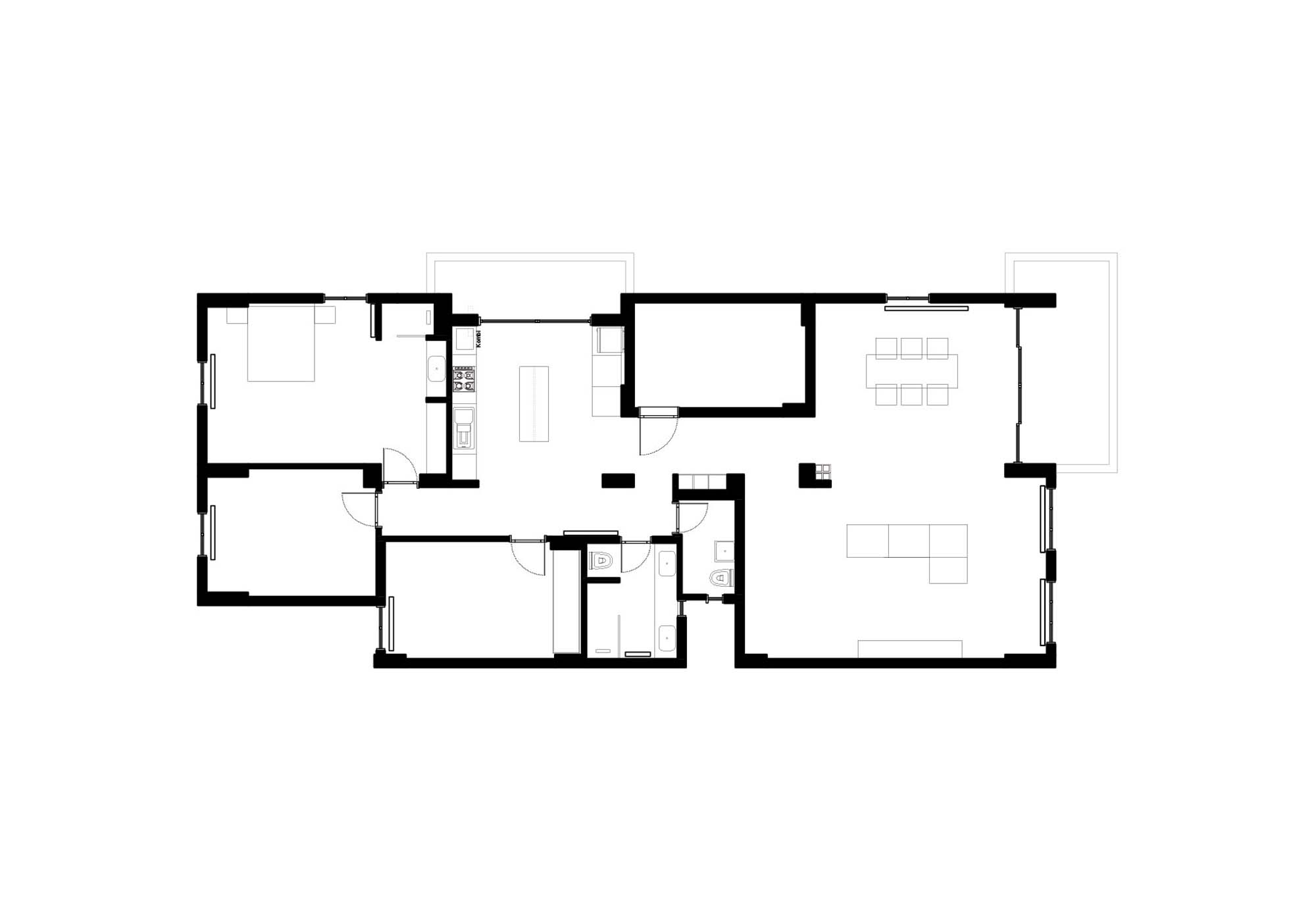
2. Jenerasyon Renovasyon
Project Location: Balıkesir, Altıeylül
Project Office: Semih Gul Mimarlik
Project Type: Single House
Proje Tipi Grubu: Konut
Tasarım Ekibi: Bünyamin Semih Gül
Ana Yüklenici: Semih Gul Mimarlik
Project Start Date: 2021
Project End Date: 2021
Construction Start Date: 2021
Construction End Date: 2021
Total Construction Area: 195 m²