21/33
Paylaş
Resmi Orjinal Boyutunda Göster
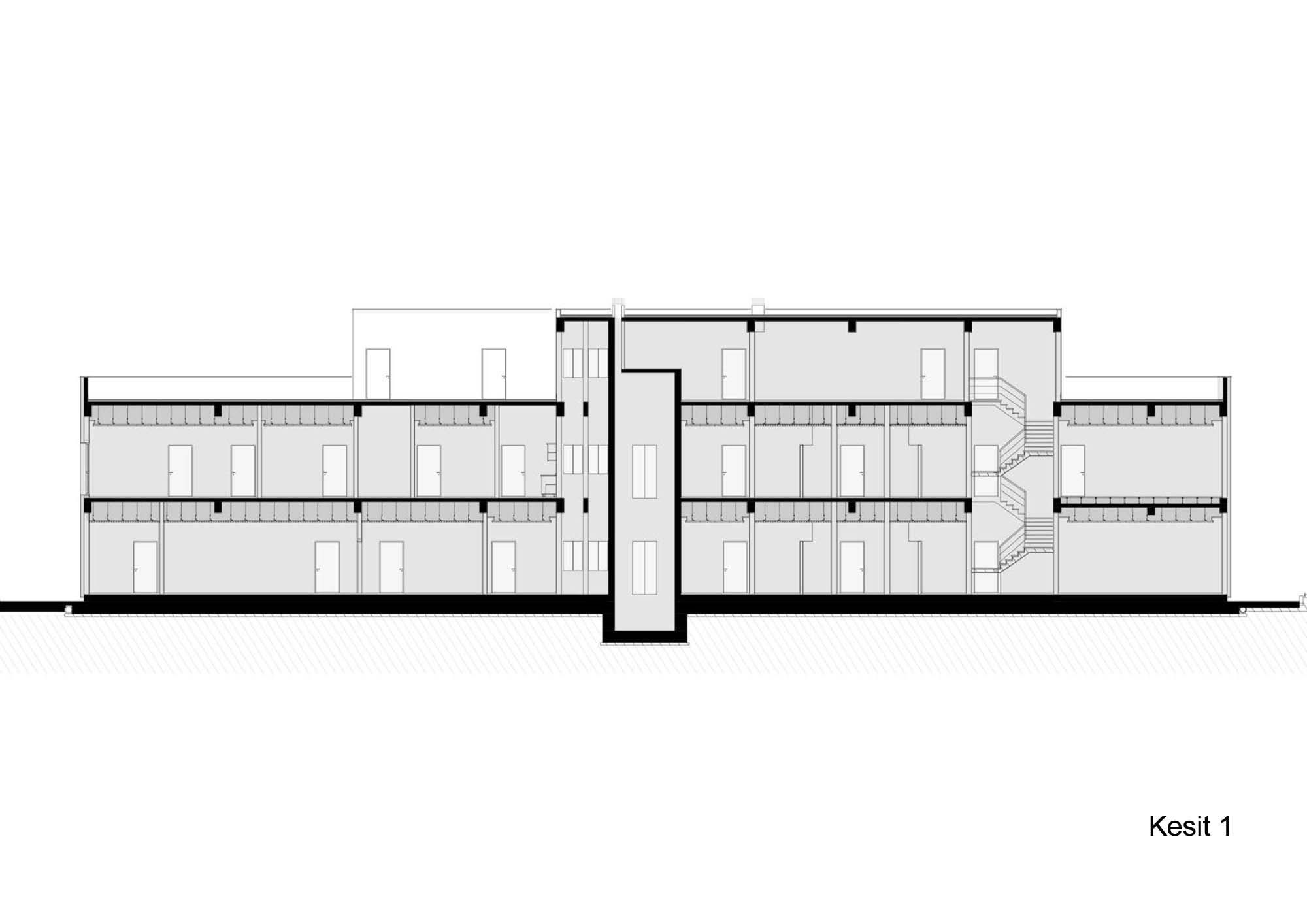
TCK Narlıdere Bakım ve İşletme Şefliği ve Tamirhane Binaları
Proje Yeri: Narlıdere, İzmir
Proje Ofisi: Not Mimarlık
Proje Tipi: Diğer Kamu Yapıları
Proje Tipi Grubu: Kamu
Tasarım Ekibi: Serdar Uslubaş, Merih Feza Yıldırım, Duygu Görgün Şenoğlu, Talat Çelebi, Gülbiye Hacıoğlu, Ceren Tuncer, Sena Neşem Uysal
Statik Projesi: Yüksel Yapı
Mekanik Projesi: Tolga Pala
Elektrik Projesi: Elegant Mühendislik
Fotoğraf: Zeren + Mehmet Yasa Photography
Proje Başlangıç Yılı: 2017
Toplam İnşaat Alanı: 3,302 m2