42/43
Paylaş
Resmi Orjinal Boyutunda Göster
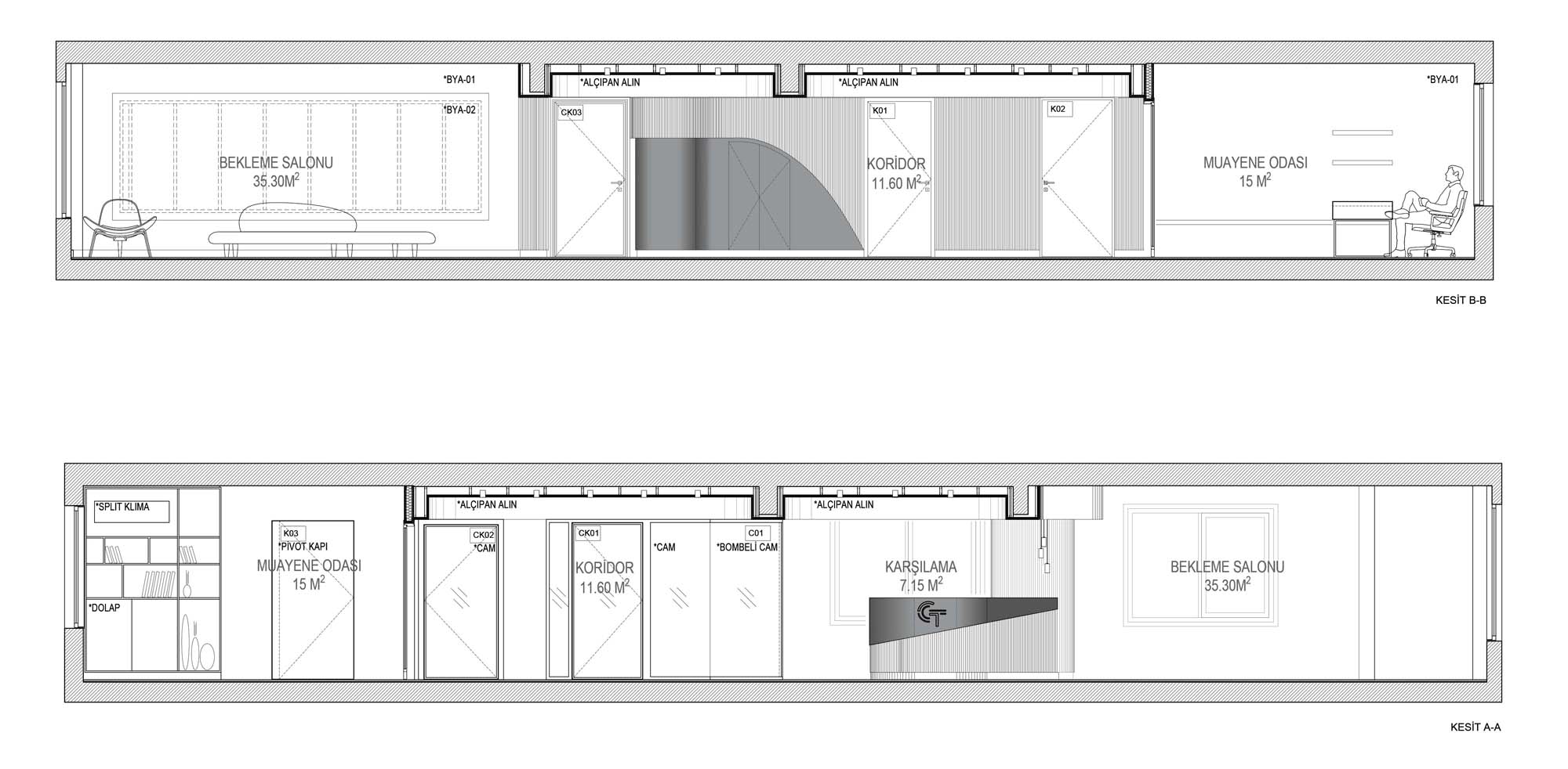
Taşkıran Medikal Estetik Kliniği
Proje Yeri: Kadıköy, İstanbul
Proje Ofisi: Büro Simpelt
Proje Tipi: Diğer Sağlık Yapıları
Proje Tipi Grubu: Sağlık
Tasarım Ekibi: Yiğitcan Ülkücü
İşveren: İbrahim Can Taşkıran
Danışman: Usal Danışmanlık, Ahmet Öztürk
Yardımcı: Yiğit Babacan, Koray Haktanır
Ana Yüklenici: Büro Simpelt
Peyzaj Mimarlığı: Verda Botanic
Proje Yöneticisi: Yiğitcan Ülkücü
Grafik Tasarım: WEAREKA
Fotoğraf: Selahattin Acar
Proje Başlangıç Yılı: 2021
Proje Bitiş Yılı: 2021
İnşaat Başlangıç Yılı: 2021
İnşaat Bitiş Yılı: 2021
Toplam İnşaat Alanı: 105 m2