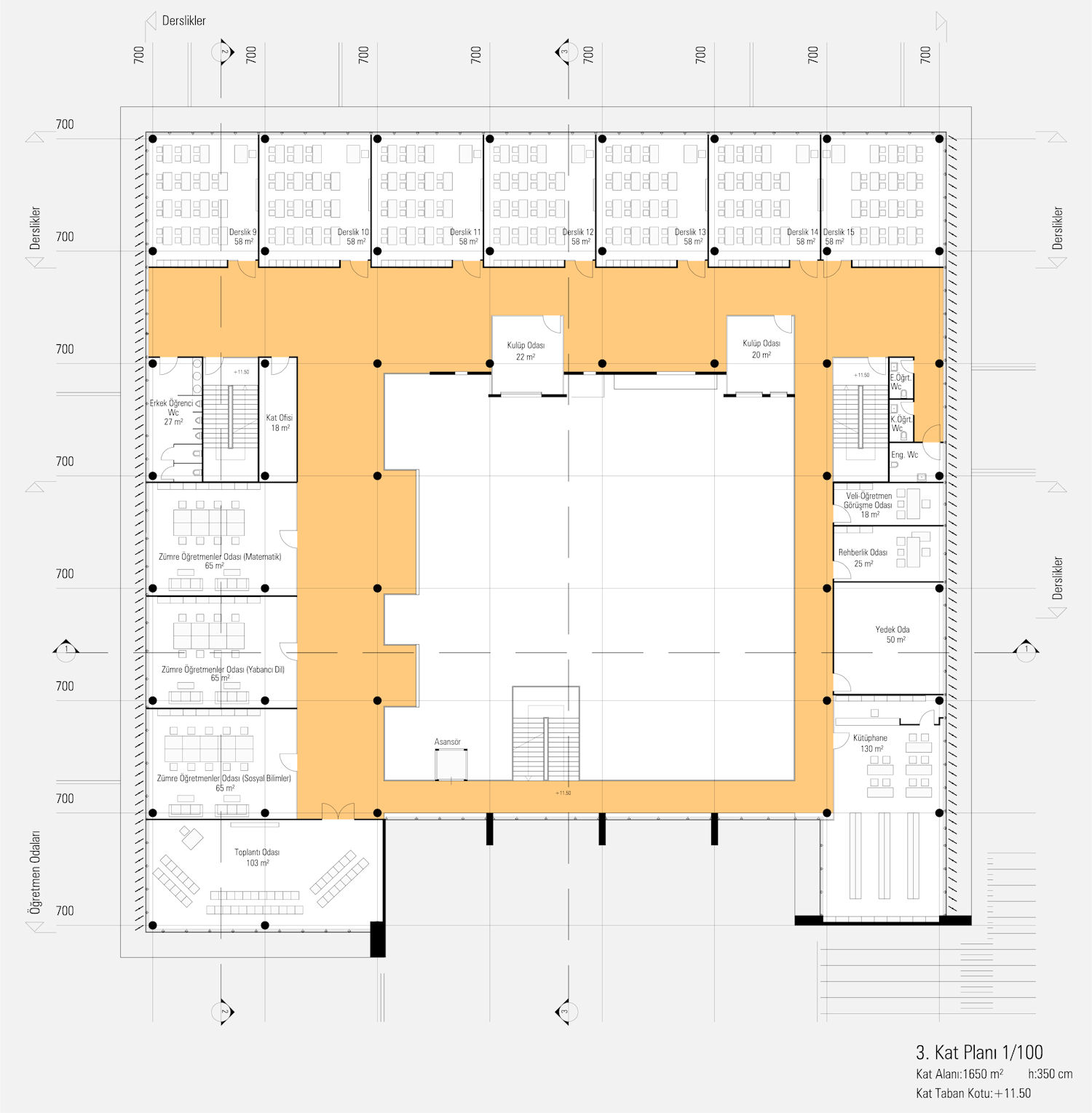
Üçüncü Kat Planı
5/32
Paylaş
Resmi Orjinal Boyutunda Göster
Nuri Atik Teknik ve Endüstri Meslek Lisesi Yarışması, M artı D
Proje Yeri: İzmir
Proje Tipi: Lise / Ortaöğretim
Proje Tipi Grubu: Eğitim
Tasarım Ekibi: Metin Kılıç, Dürrin Süer
Mimari Proje Ekibi: Damla Duru, Ali Can Helvacıoğlu, Serdar Uslubaş, Merih Feza Yıldırım
Danışman: Deniz Güner