21/26
Paylaş
Resmi Orjinal Boyutunda Göster
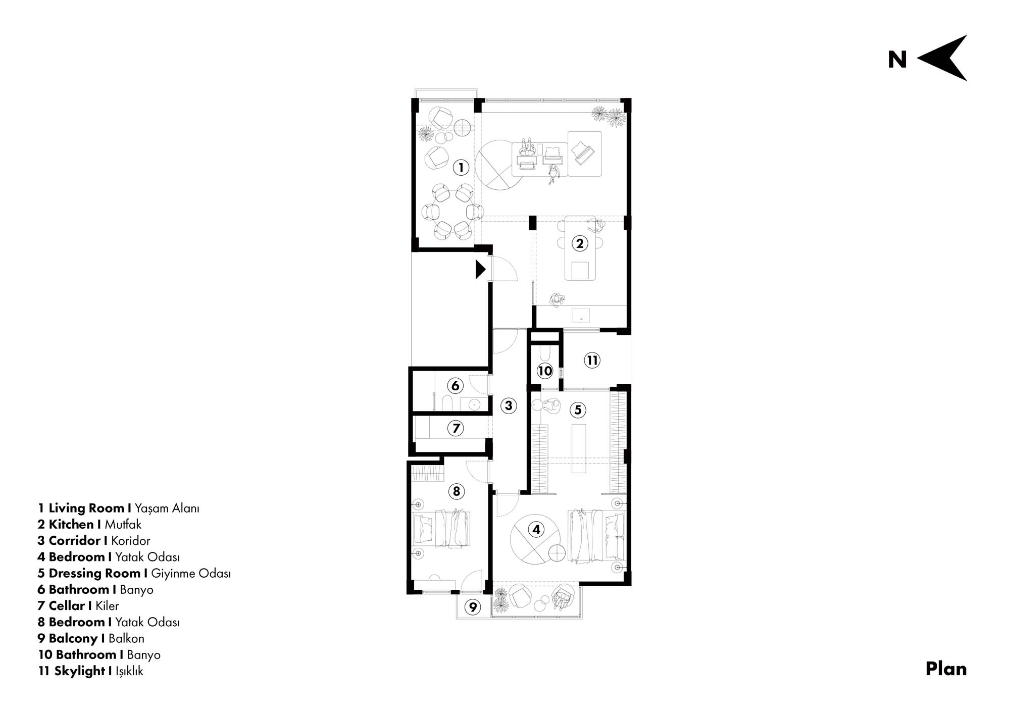
Moda44
Proje Yeri: İstanbul, Kadıköy
Proje Ofisi: the | work
Proje Tipi: Tek Ev / Villa
Proje Tipi Grubu: Konut
Tasarım Ekibi: Büşra Koçak, Berk Arinç
Proje Başlangıç Yılı: 2020
Proje Bitiş Yılı: 2021
İnşaat Başlangıç Yılı: 2020
İnşaat Bitiş Yılı: 2021
Toplam İnşaat Alanı: 150 m2