24/35
Paylaş
Resmi Orjinal Boyutunda Göster
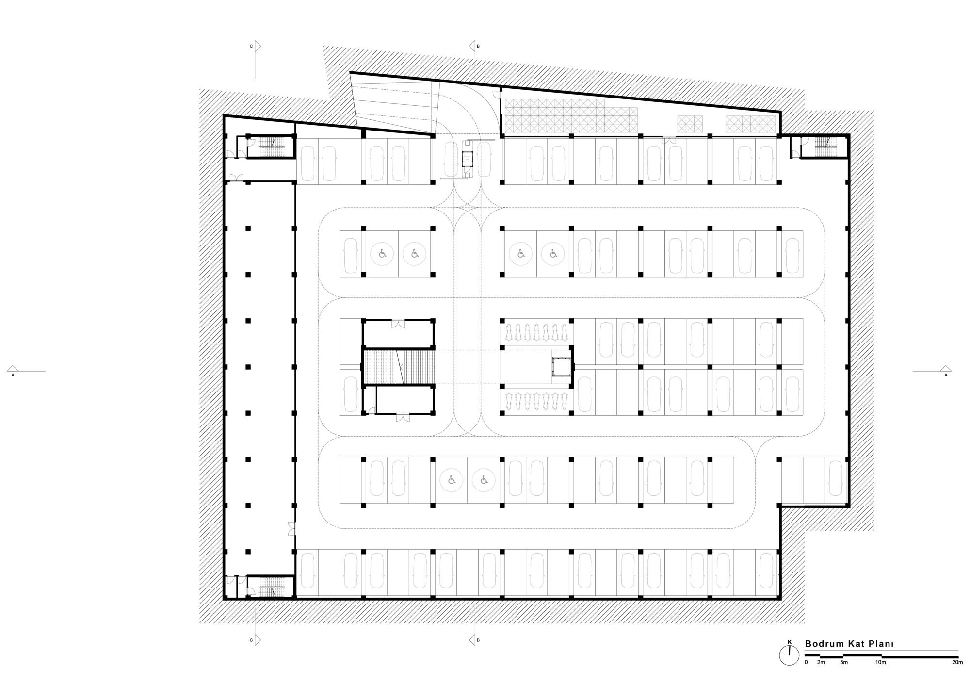
Millet Mahallesi Pazar Alanı
Proje Yeri: Bursa, Yıldırım
Proje Ofisi: Per Se Mimarlık
Proje Tipi: Pazar Yeri
Proje Tipi Grubu: Ticari
Tasarım Ekibi: Ali Derya Dostoğlu, Uğur Özer
İşveren: Bursa Yıldırım Belediyesi
Yardımcı: Canberk Özcan, Berrin Sezer, Emre Gündüz, Enes Keleşmehmet, Gizem Kaygusuz
Statik Projesi: Deniz & Karaca Mühendislik
Mekanik Projesi: Mekanik Proje Mühendislik
Elektrik Projesi: Çetin Elektrik
Tesisat Projesi: Mekanik Proje Mühendislik
Çelik Projesi: Deniz & Karaca Mühendislik
Fotoğraf: Egemen Karakaya
Proje Başlangıç Yılı: 2020
Proje Bitiş Yılı: 2020
İnşaat Başlangıç Yılı: 2020
İnşaat Bitiş Yılı: 2021
Arsa Alanı: 6.124 m2
Toplam İnşaat Alanı: 10.033 m2