61/89
Paylaş
Resmi Orjinal Boyutunda Göster
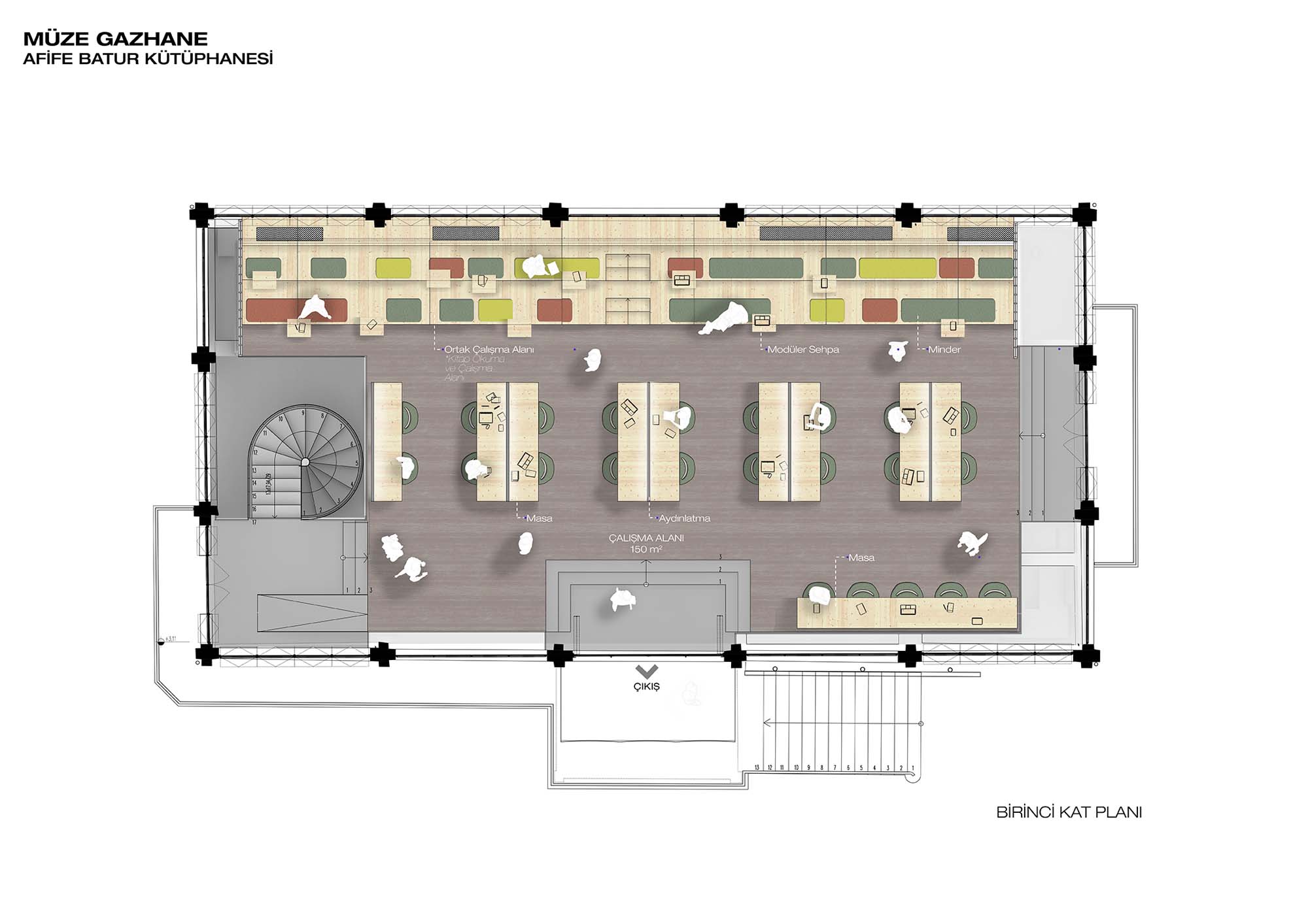
Muze Gazhane
Proje Yeri: Kadıköy, İstanbul
Proje Ofisi: do[x]architecture
Proje Tipi: Kütüphane, Müze, Sergi Mekanı / Galeri, Restoran / Kafe / Bar
Proje Tipi Grubu: Kültür Yapısı
Tasarım Ekibi: Dicle B. Özdemir, Kadir Uyanık, Damla Çolakoğlu, Tuncay Güner, Cansu Özay
İşveren: İstanbul Büyükşehir Belediyesi, Gürsoy Group
Ana Yüklenici: Gürsoy Group
Alt Yüklenici: The Mob, Karınca Reklam, ADF Mühendislik
Grafik Tasarım: Pompaa
Fotoğraf: Sena Özfiliz, Archilifography
İnşaat Bitiş Yılı: 2021