3/39
Paylaş
Resmi Orjinal Boyutunda Göster
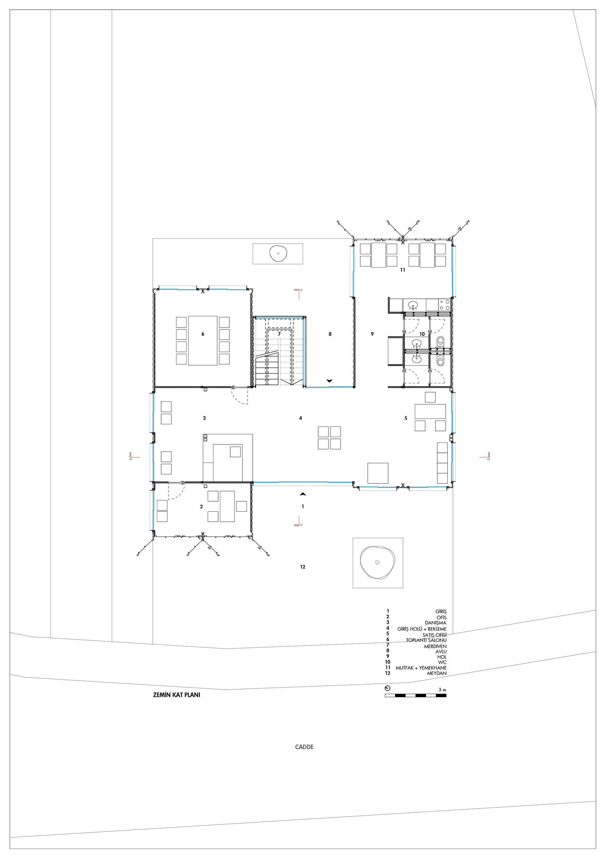
48 Yapı Yönetim Ofisi
Proje Yeri: Marmaris, Muğla
Proje Ofisi: Deren Uysal Architecture, Deser Mimarlık
Tasarım Ekibi: Deren Uysal, Levent Uysal
Mimari Proje Ekibi: Selen Özdoğan, Dilara Yılmaz, Kağan Şahin
İşveren: 48 Yapı
Ana Yüklenici: 48 Yapı
Peyzaj Mimarlığı: Deren Uysal Architecture, Deser Mimarlık
İç Mekan Projesi: Deren Uysal Architecture, Deser Mimarlık
Konsept Tasarımı: Deren Uysal Architecture, Deser Mimarlık
Uygulama Projesi: Deren Uysal Architecture, Deser Mimarlık
Grafik Tasarım: Selen Özdoğan
Statik Projesi: Mustafa Kemal Huz
Mekanik Projesi: İsmail Eroğlu
Elektrik Projesi: Erdinç Ünal
Fotoğraf: Deren Uysal, Selen Özdoğan
Proje Başlangıç Yılı: 2020
Proje Bitiş Yılı: 2021
İnşaat Başlangıç Yılı: 2021
İnşaat Bitiş Yılı: 2021
Arsa Alanı: 1329
Toplam İnşaat Alanı: 359