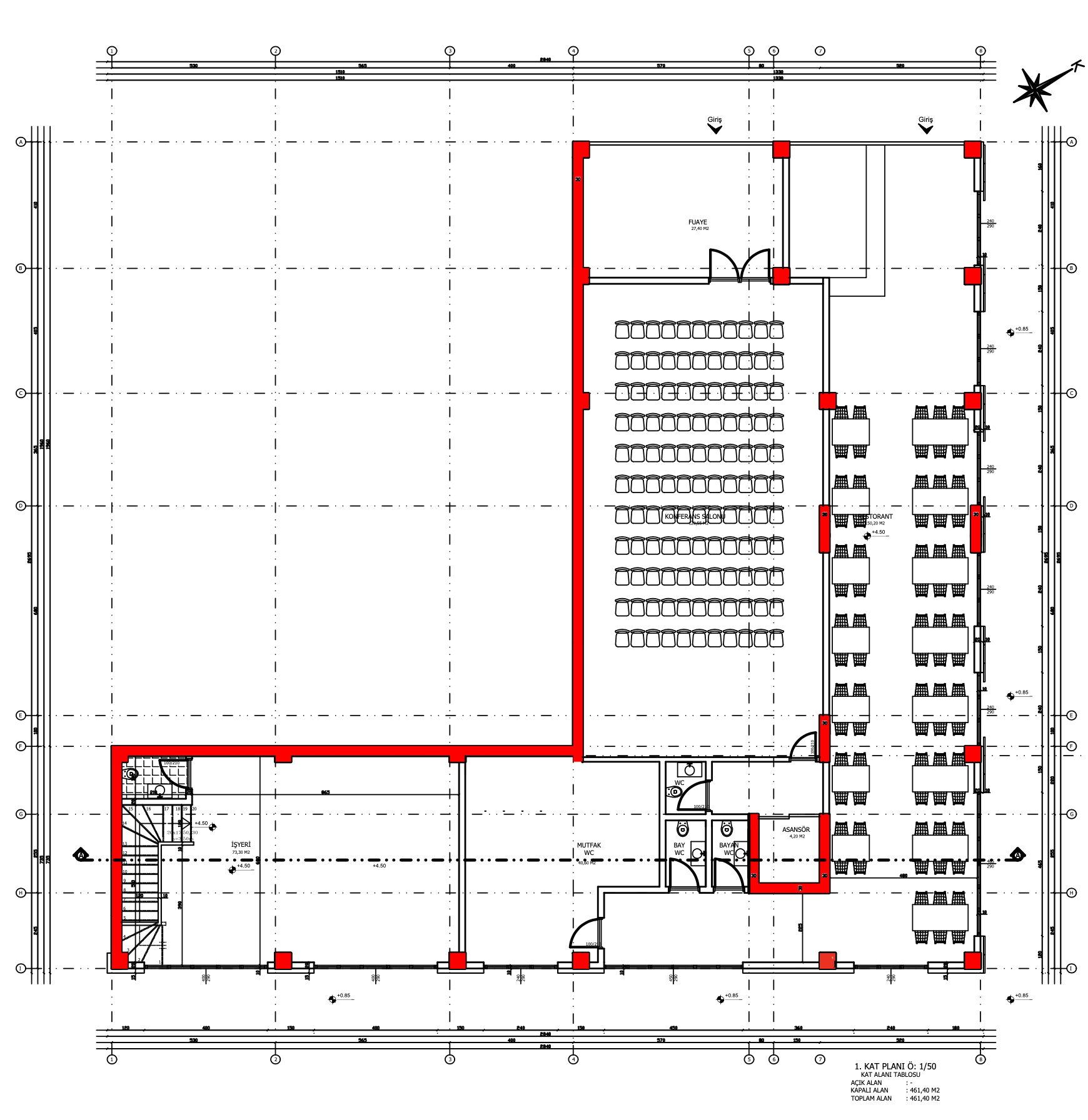
21 birinci kat planı.png
11/13
Paylaş
Resmi Orjinal Boyutunda Göster
Antakya Organize Sanayi Bolgesi Idari ve Sosyal Tesis Yapisi
Proje Yeri: Antakya, Hatay
Tasarım Ekibi: Ahmet Sarıgül, Sami Arıca
İşveren: Antakya Organize Sanayi Bölgesi Yönetim Kurulu
Danışman: Sami Arıca
Ana Yüklenici: Antakya Organize Sanayi Bölgesi Yönetim Kurulu
Peyzaj Mimarlığı: Ahmet Sarıgül
İç Mekan Projesi: Ahmet Sarıgül
Konsept Tasarımı: Ahmet Sarıgül
Uygulama Projesi: Ahmet Sarıgül
Cephe Tasarımı: Ahmet Sarıgül
Statik Projesi: Cem Beyazıt
Mekanik Projesi: İsyan Havvat
Elektrik Projesi: Cihan Çulha
Tesisat Projesi: İsyan Havvat
Çelik Projesi: Cem Beyazıt
Yangın Tahliye Projesi: İsyan Havvat
Maket: Ahmet Sarıgül
Mimari Mesleki Kontrollük: Ahmet Sarıgül
Şantiye Yöneticisi: Ahmet Sarıgül
Proje Başlangıç Yılı: 2019
Proje Bitiş Yılı: 2020
İnşaat Başlangıç Yılı: 2020
İnşaat Bitiş Yılı: 2021
Arsa Alanı: 5493,56
Toplam İnşaat Alanı: 1643,30