34/50
Paylaş
Resmi Orjinal Boyutunda Göster
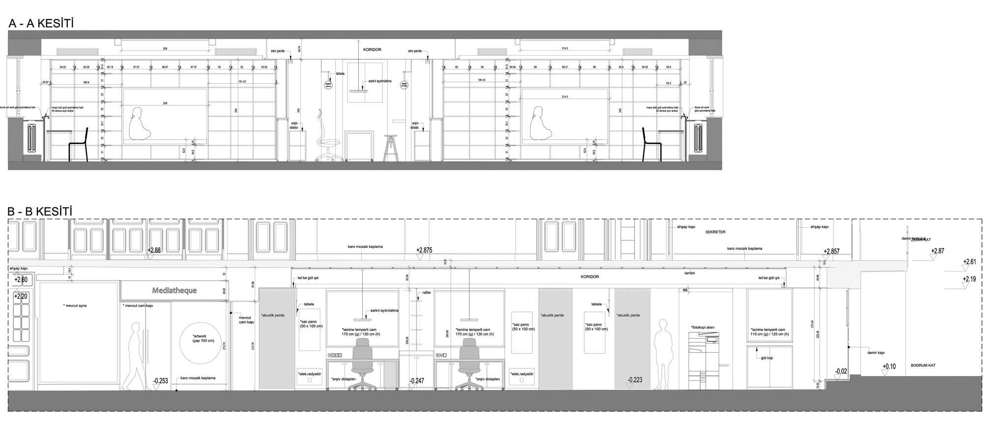
St Michel Fransız Lisesi Kütüphane Renovasyonu
Proje Yeri: İstanbul
Proje Ofisi: Yerce + Taylan Architects
Proje Tipi: Kütüphane
Proje Tipi Grubu: Kültür Yapısı
Tasarım Ekibi: Ayça Taylan, Nail Egemen Yerce, Simge Çil, Zeynep Şankaynağı, Özge Akdeniz, Nur Gülgör
İşveren: St. Michel Lisesi
Ana Yüklenici: Selay Yapı
İç Mekan Projesi: Yerce + Taylan Architects
Konsept Tasarımı: Yerce + Taylan Architects