22/25
Paylaş
Resmi Orjinal Boyutunda Göster
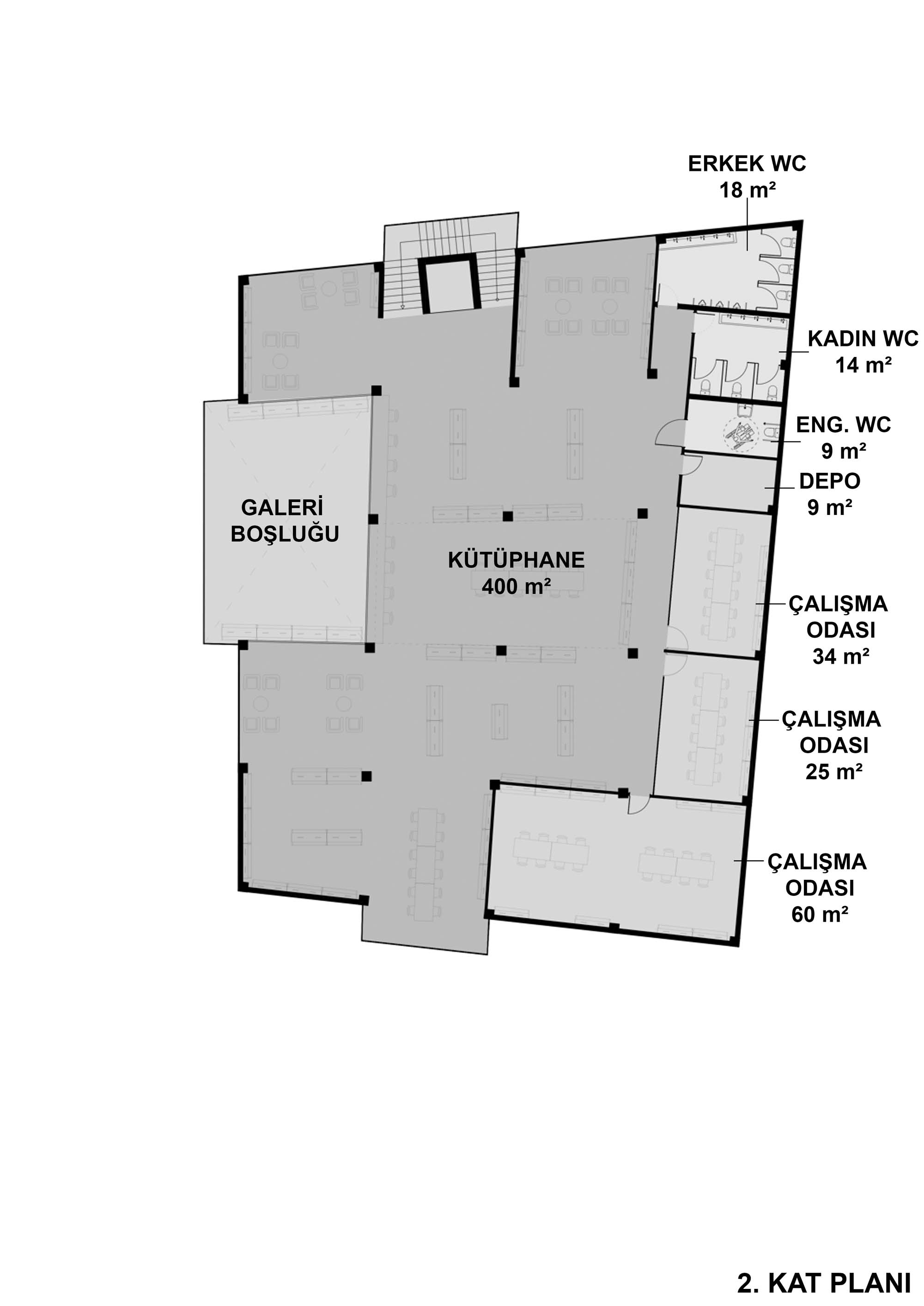
Afyonkarahisar Belediyesi Kütüphanesi
Proje Yeri: Afyonkarahisar
Proje Ofisi: Tasarım İşliği
Proje Tipi: Kütüphane
Proje Tipi Grubu: Kültür
Tasarım Ekibi: İsmail Efe, Mehmet Akif Yıldız, İrem Erdem, Meryem Saatci, Adile Sümeyye Çakır, Çisem Nur Demirci
İşveren: Afyonkarahisar Belediyesi
Ana Yüklenici: Afyonkarahisar Belediyesi
Proje Başlangıç Yılı: 2020
Proje Bitiş Yılı: 2021
Arsa Alanı: 1.165 m2
Toplam İnşaat Alanı: 4.853 m2