12/17
Paylaş
Resmi Orjinal Boyutunda Göster
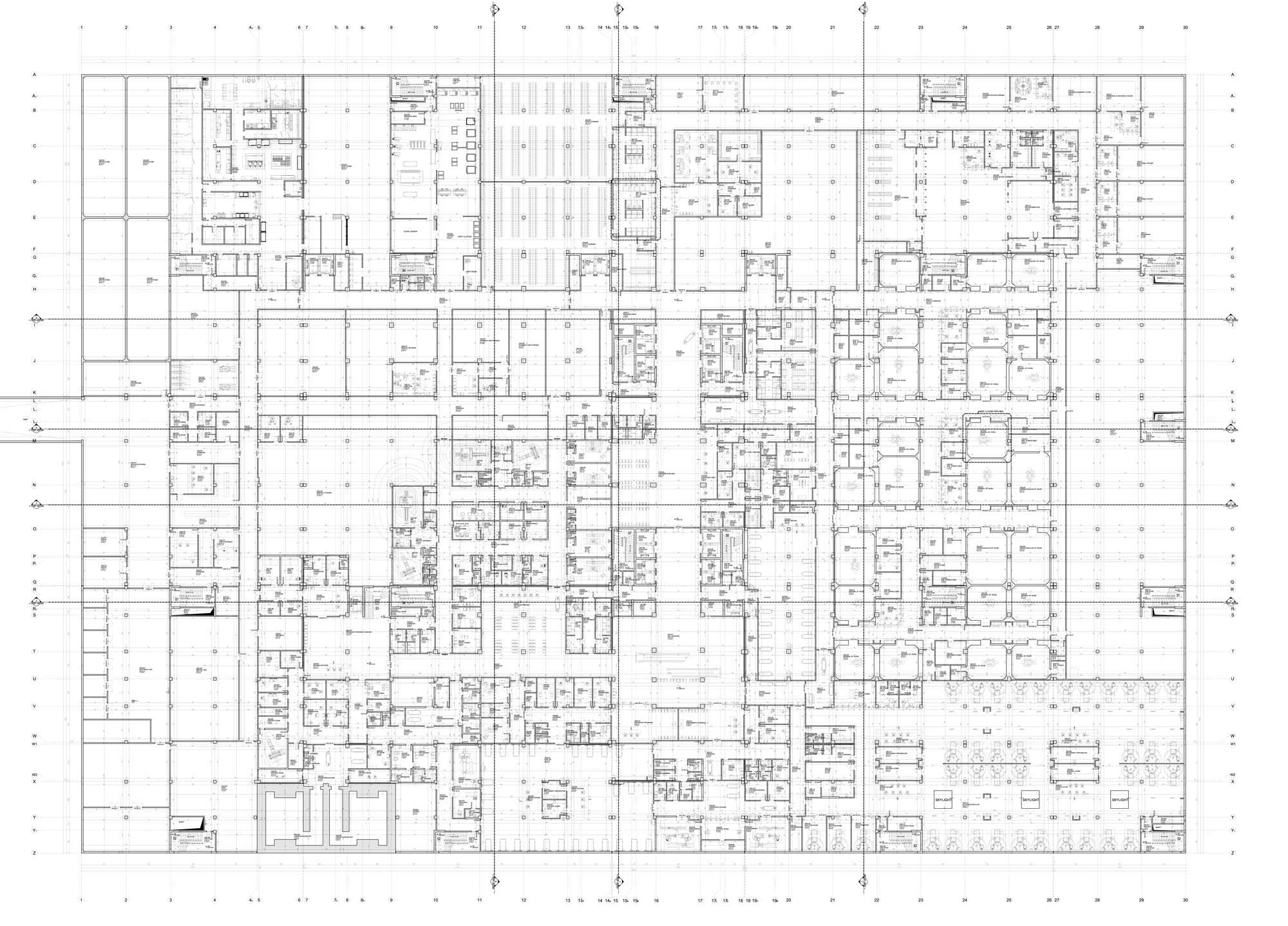
Justice Adolphus Karibi Whyte Specialist Hospital
Project Location: Port Harcourt, Nijerya
Project Office: Medmim Mimarlık
Project Type: Hospital / Clinic
Proje Tipi Grubu: Sağlık
Tasarım Ekibi: Göksel Öksüz, Bilgin Karaca
Employer: Clinotech Group
Consultant: Joseph Higgins
Yardımcı: Mustafa Özsözlü, Ayşegül Kaymakçı
Ana Yüklenici: CLINORIV
Peyzaj Mimarlığı: Sinemnur Öksüz
Structural Project: Timka Mühendislik, Metin Köksaldı
Mechanical Project: Setta Mühendislik, Gazanfer Köroğlu
Electrical Project: HB Teknik Elektrik Mühendislik, Hüesyin Gülsoy
Project Start Date: 2009
Project End Date: 2010
Construction Start Date: 2010
Building Plot Area: 220.000 m²
Total Construction Area: 85.000 m²