20/20
Paylaş
Resmi Orjinal Boyutunda Göster
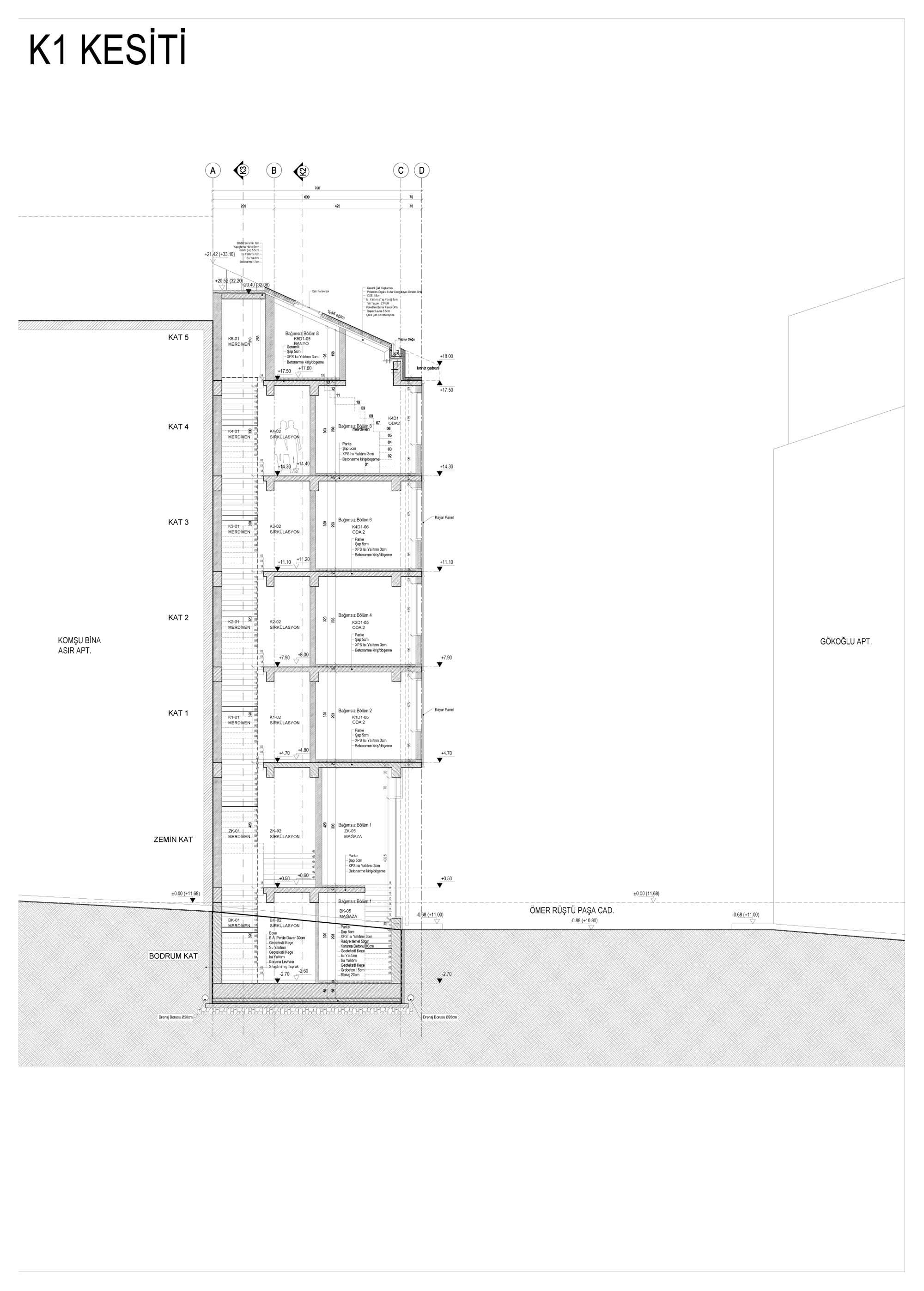
Nur Apartmani
Proje Yeri: İstanbul, Şişli
Proje Ofisi: Erginoğlu & Çalışlar Mimarlık
Proje Tipi: Apartman
Proje Tipi Grubu: Konut
Tasarım Ekibi: Hasan Çalışlar, Fatih Kariptaş, Aslı Germirli, Barış Yüksel
Ana Yüklenici: Halil Ataman
Statik Projesi: Modern Mühendislik
Mekanik Projesi: Prota Mühendislik
Elektrik Projesi: Enkom Mühendislik
Fotoğraf: Cemal Emden
Proje Başlangıç Yılı: 2015
Proje Bitiş Yılı: 2015
İnşaat Başlangıç Yılı: 2019
İnşaat Bitiş Yılı: 2021
Arsa Alanı: 144
Toplam İnşaat Alanı: 1.011