20/24
Paylaş
Resmi Orjinal Boyutunda Göster
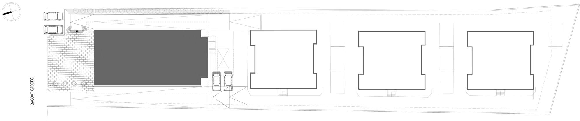
Verdi Ofis
Proje Yeri: Kadıköy, İstanbul
Proje Ofisi: Erginoğlu & Çalışlar Mimarlık
Proje Tipi: Ofis
Proje Tipi Grubu: Ticari
Tasarım Ekibi: Kerem Erginoğlu, Natali Koçyan Gazeroğlu, Sezen Bilge, Barış Yüksel, Zeynep Oba
İşveren: Ferhunde Verdi
Danışman: Proje Aydınlatma
Ana Yüklenici: Grup Atlantis
Statik Projesi: Modern Mühendislik
Elektrik Projesi: Enkom Mühendislik
Fotoğraf: Cemal Emden
Proje Başlangıç Yılı: 2014
Proje Bitiş Yılı: 2021
İnşaat Başlangıç Yılı: 2020
İnşaat Bitiş Yılı: 2021
Arsa Alanı: 2.434
Toplam İnşaat Alanı: 3.505