25/30
Paylaş
Resmi Orjinal Boyutunda Göster
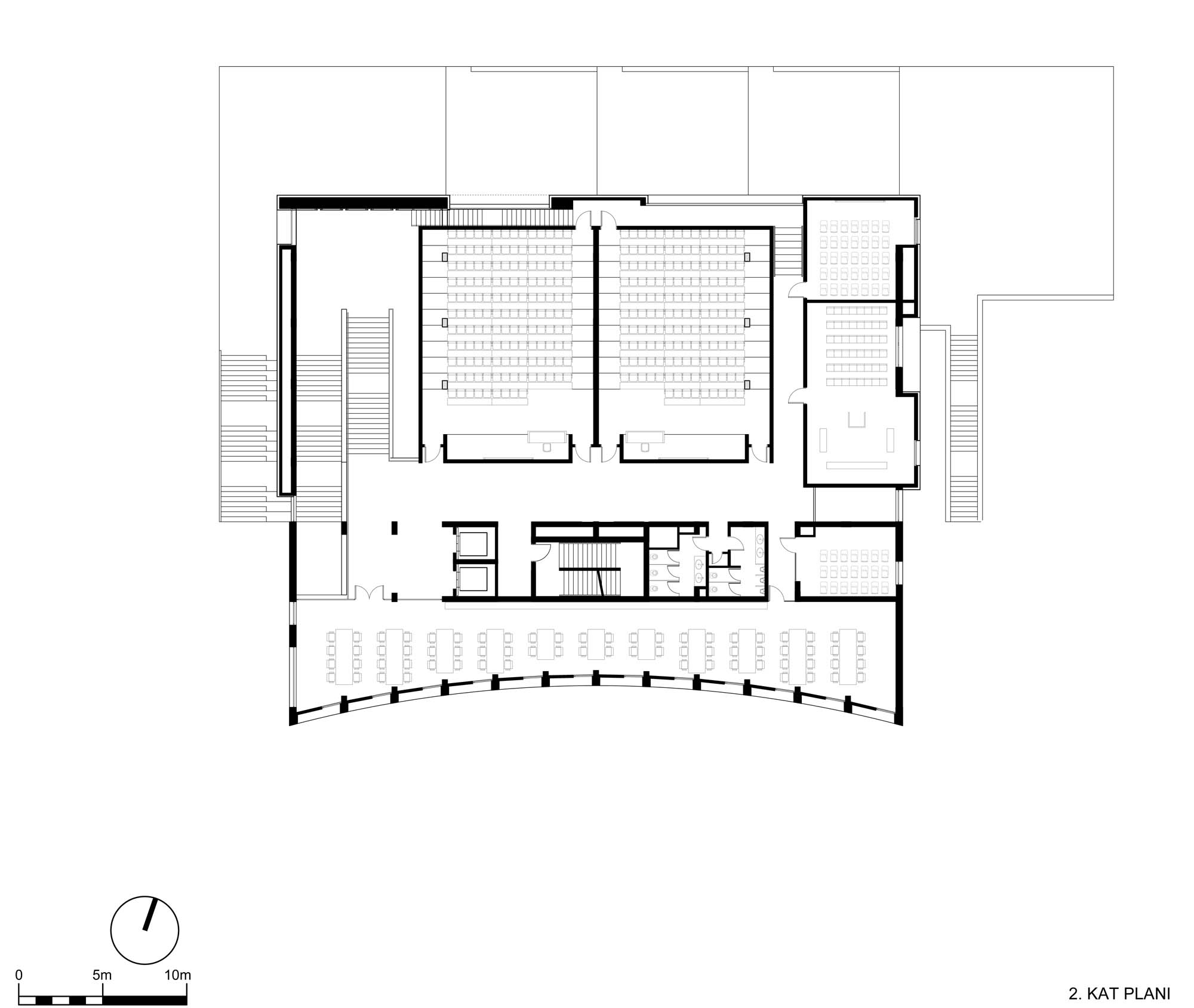
Cankaya Universitesi Hukuk Fakultesi
Proje Yeri: Ankara, Etimesgut
Proje Ofisi: Erkal Mimarlık
Proje Tipi: Yüksek Öğretim Yapısı
Proje Tipi Grubu: Eğitim Yapısı
Tasarım Ekibi: Emre Erkal, Filiz Erkal, Ozan Erkal, Coşkun Erkal
İşveren: Çankaya Üniversitesi
Ana Yüklenici: Vezir İnşaat
Statik Projesi: Levent Aksaray Mühendislik
Mekanik Projesi: Abdullah Bilgin
Elektrik Projesi: Promete Mühendislik
Altyapı Projesi: Ali Cumhur Zibel, Diyap Mühendislik
Fotoğraf: Orhan Kolukısa, Yercekim Mimari Fotograf
Proje Başlangıç Yılı: 2017
Proje Bitiş Yılı: 2018
İnşaat Başlangıç Yılı: 2019
İnşaat Bitiş Yılı: 2021
Arsa Alanı:
Toplam İnşaat Alanı: 7.350