2/13
Paylaş
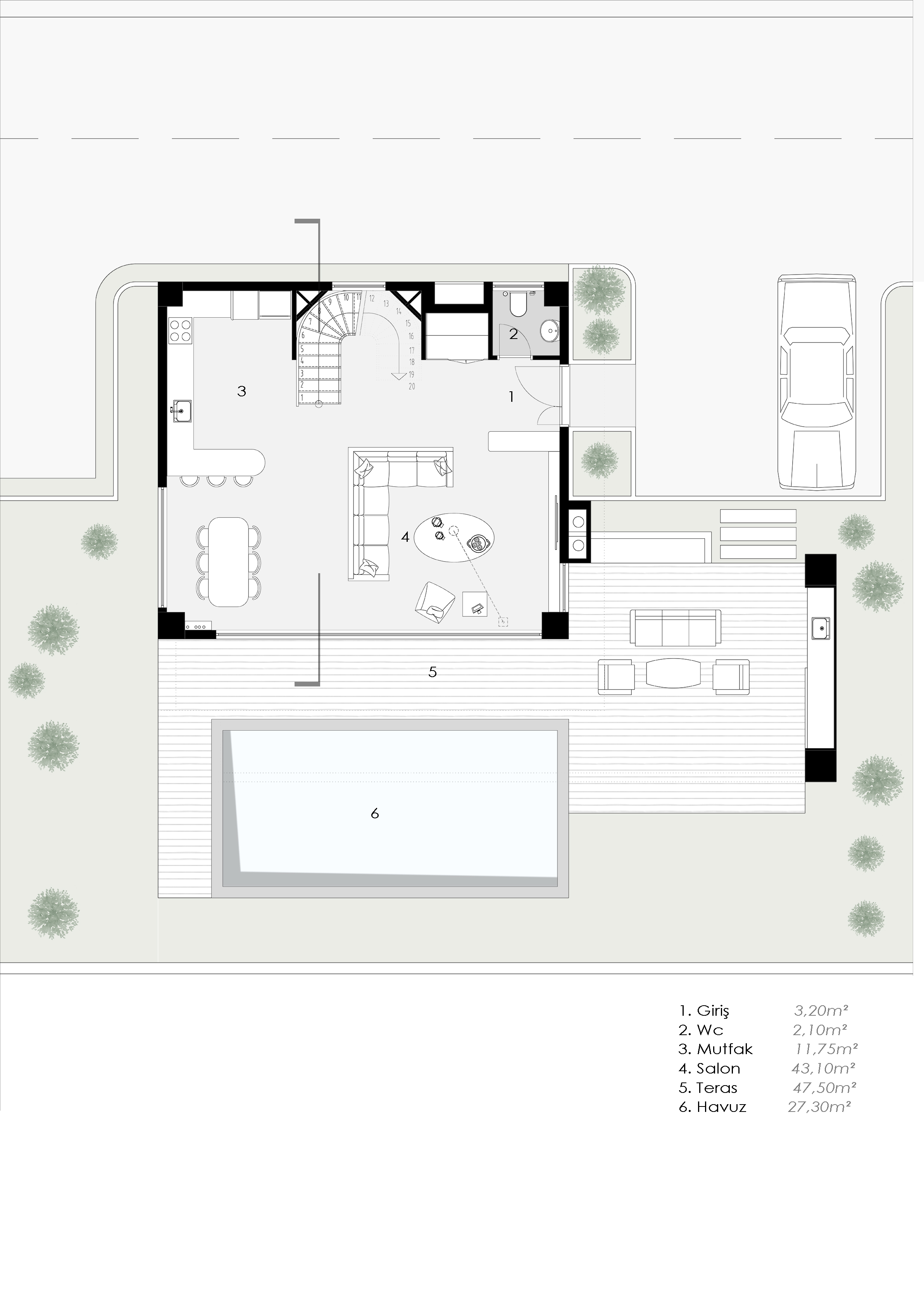
Resmi Orjinal Boyutunda Göster
Infinity Villa
Proje Yeri: Alanya, Kargıcak
Proje Ofisi: Bahri Bey Studio
Tasarım Ekibi: Ahmet Şenli, Kerim Yüksek, Uğur Yüksel
İşveren: Aydoğan A.Ş
Ana Yüklenici: Aydoğan A.Ş
Fotoğraf: Bef Production
Proje Başlangıç Yılı: 2021
Proje Bitiş Yılı: 2021
İnşaat Başlangıç Yılı: 2021
İnşaat Bitiş Yılı: 2021
Arsa Alanı: ,