1/20
Paylaş
Resmi Orjinal Boyutunda Göster
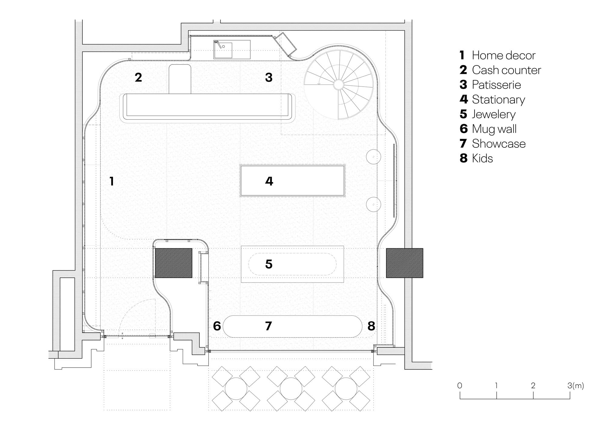
Tiedup Concept Store
Proje Yeri: Zeytinburnu, İstanbul
Proje Ofisi: Lift Studio
Proje Tipi: Mağaza / Showroom
Tasarım Ekibi: Oğuzhan Aydın, Sinan Tuncer
Mimari Proje Ekibi: Duygu Bingül Aydın, Vahdet Set
İşveren: Tiedup Mağazacılık
Ana Yüklenici: Lift Studio
Fotoğraf: Engin Gerçek
Proje Başlangıç Yılı: 2022
Proje Bitiş Yılı: 2022
İnşaat Başlangıç Yılı: 2022
İnşaat Bitiş Yılı: 2022
Toplam İnşaat Alanı: 130