2/41
Paylaş
Resmi Orjinal Boyutunda Göster
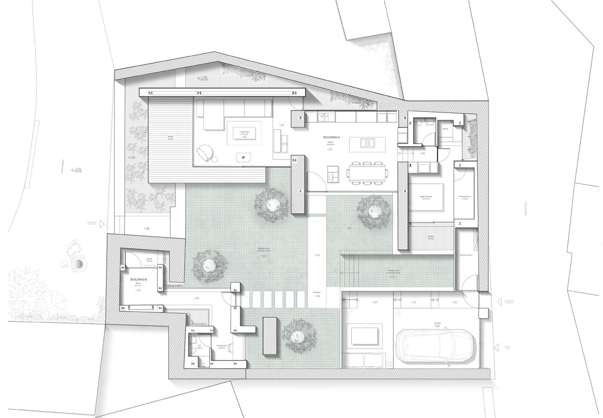
Zeytinli Evi
Proje Yeri: İzmir, Seferihisar
Proje Ofisi: Office Istanbul Architects
Proje Tipi: Tek Ev / Villa
Proje Tipi Grubu: Konut
Tasarım Ekibi: Kemal Serkan Demir, Ece Türkel, Lara Uyal, Murat Kumbaracı
Mimari Proje Ekibi: Kemal Serkan Demir, Ece Türkel, Lara Uyal, Murat Kumbaracı
İşveren: Office Istanbul Architects
Yardımcı: Can Sözeri, Zülal Coşan, Şeval Özakça, Gizem Güleryüz
Ana Yüklenici: Office Istanbul Architects
Alt Yüklenici: Semet İnşaat
Peyzaj Mimarlığı: Office Istanbul Architects
İç Mekan Projesi: Office Istanbul Architects
Proje Yöneticisi: Kemal Serkan Demir, Lara Uyal
Konsept Tasarımı: Office Istanbul Architects
Uygulama Projesi: Office Istanbul Architects
Mimari Mesleki Kontrollük: Kemal Serkan Demir
Şantiye Yöneticisi: Lara Uyal
Proje Başlangıç Yılı: 2021
Proje Bitiş Yılı:
İnşaat Başlangıç Yılı: 2021
İnşaat Bitiş Yılı: 2022
Arsa Alanı: 387,79
Toplam İnşaat Alanı: 124