1/10
Paylaş
Resmi Orjinal Boyutunda Göster
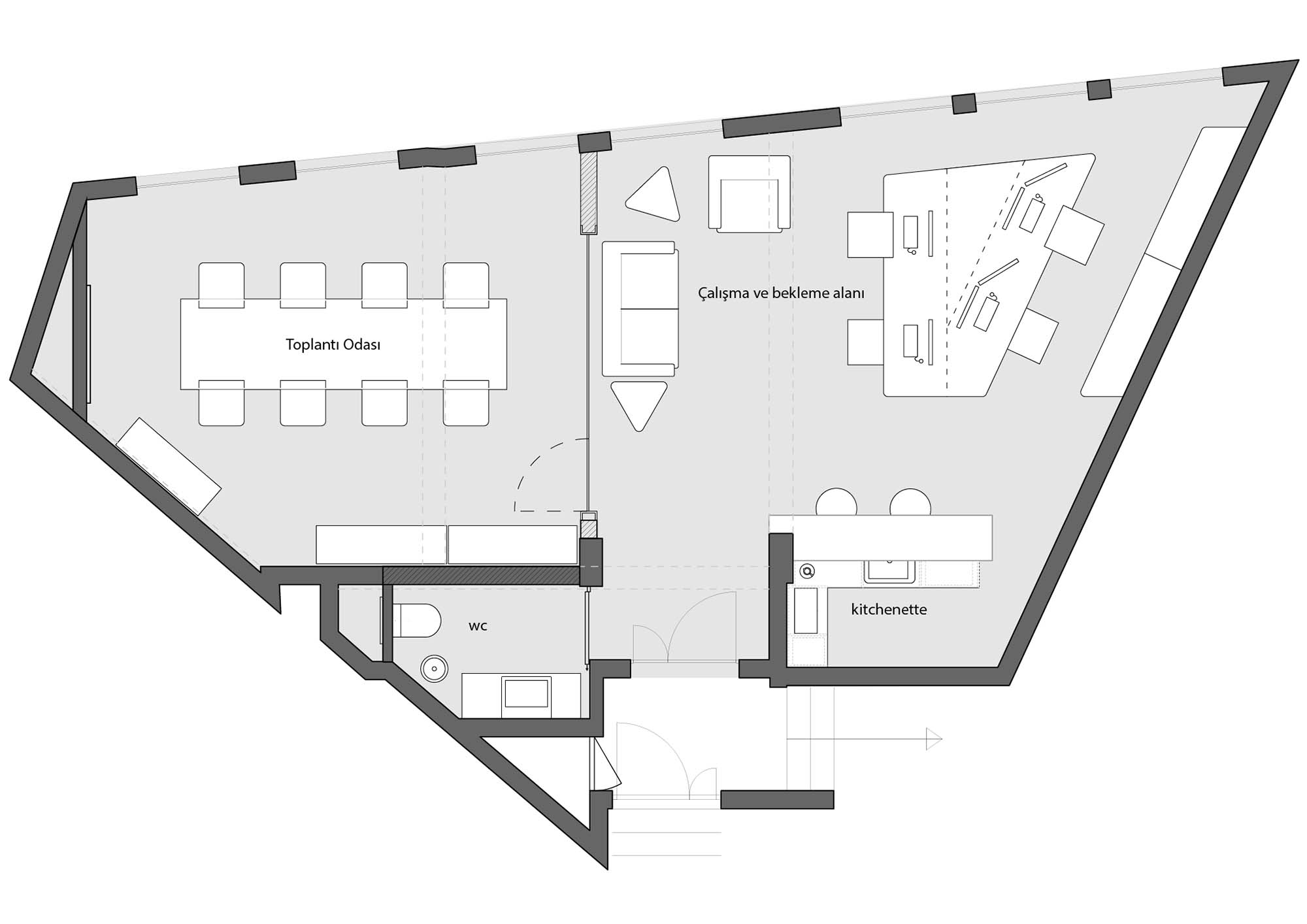
Big Ofis
Project Location: Datça, Muğla
Project Office: Big Mimarlık
Tasarım Ekibi: Gizem Çetin Özer
Employer: Big Mimarlık
Ana Yüklenici: Yarımada İnşaat
Interior Architecture: Gizem Çetin Özer
Project Start Date: 2017
Project End Date: 2017
Construction Start Date: 2017
Construction End Date: 2018
Total Construction Area: 90 m²