3/16
Paylaş
Resmi Orjinal Boyutunda Göster
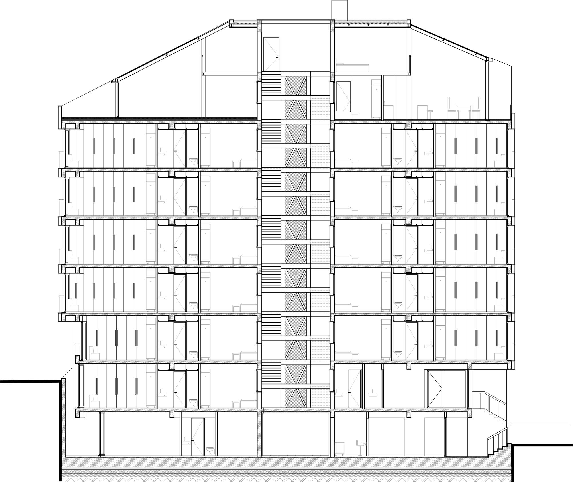
Nişantaşı Seyhanlı Apartmanı
Proje Yeri: Nişantaşı, İstanbul
Proje Ofisi: Beysun Mert Mimarlık
Proje Tipi: Apartman
Proje Tipi Grubu: Konut
Tasarım Ekibi: Beysun Mert, Cenap Doğan, Amra Alik
Ana Yüklenici: Beysun Mert Mimarlık
Statik Projesi: Tolga Bozyiğit
Mekanik Projesi: Öz Tesisat
Elektrik Projesi: Engin Sarıkaya
Fotoğraf: Studio Majo
Proje Bitiş Yılı: 2014
İnşaat Bitiş Yılı: 2014
Arsa Alanı: 286 m2
Toplam İnşaat Alanı: 2241 m2