19/27
Paylaş
Resmi Orjinal Boyutunda Göster
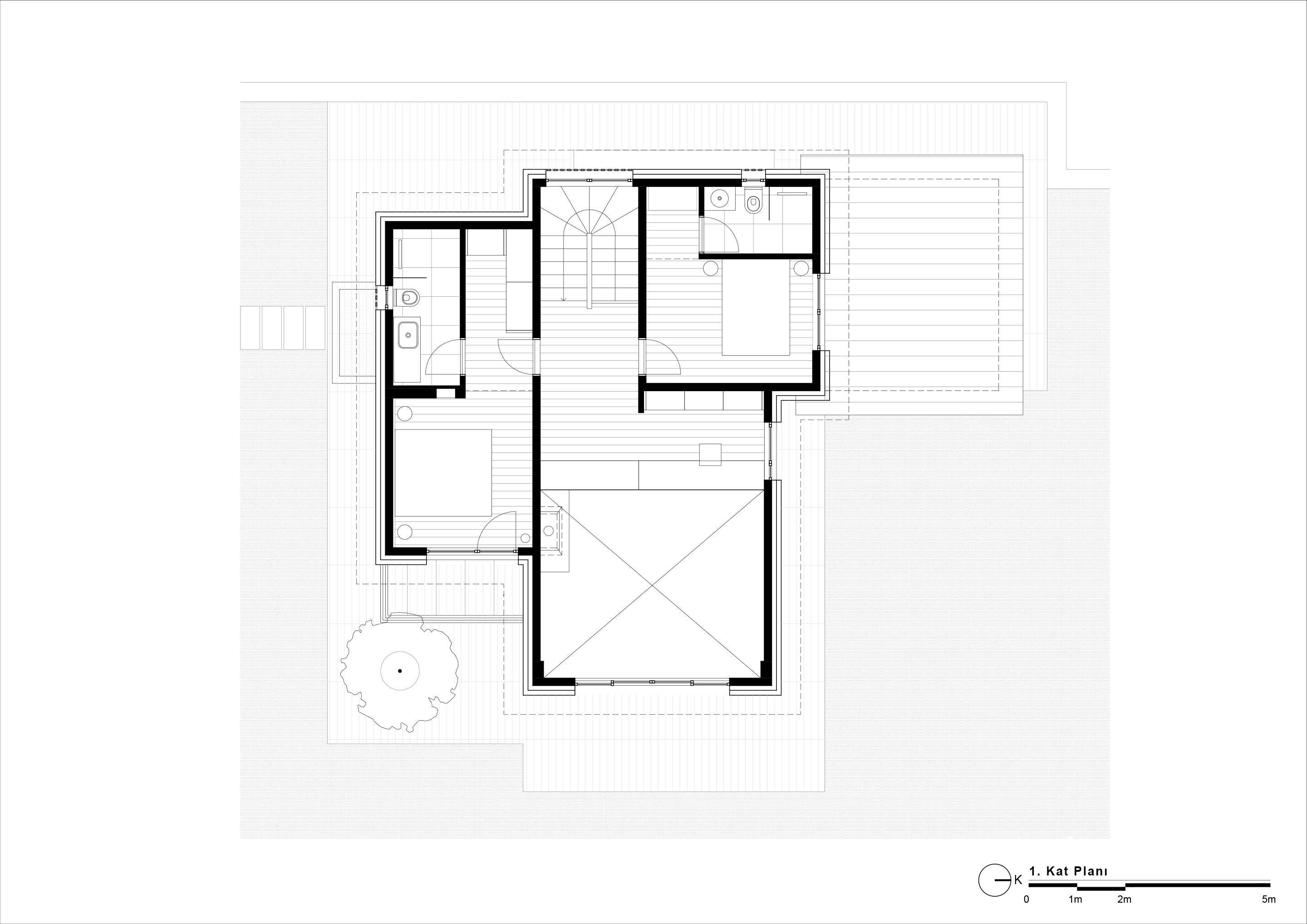
Çağlayan & Alper Evi
Proje Yeri: Yalova, Güneyköy
Proje Ofisi: Per Se Mimarlık
Proje Tipi: Tek Ev / Villa
Proje Tipi Grubu: Konut
Tasarım Ekibi: Ali Derya Dostoğlu, Uğur Özer
İşveren: Ülkü Çağlayan, Kerem Alper
Ana Yüklenici: Tayfur Somer Dekorasyon
Fotoğraf: Cihan Poçan
Proje Başlangıç Yılı:
Proje Bitiş Yılı: 2021
İnşaat Başlangıç Yılı: 2021
İnşaat Bitiş Yılı: 2021
Arsa Alanı: 1000
Toplam İnşaat Alanı: 150