2/24
Paylaş
Resmi Orjinal Boyutunda Göster
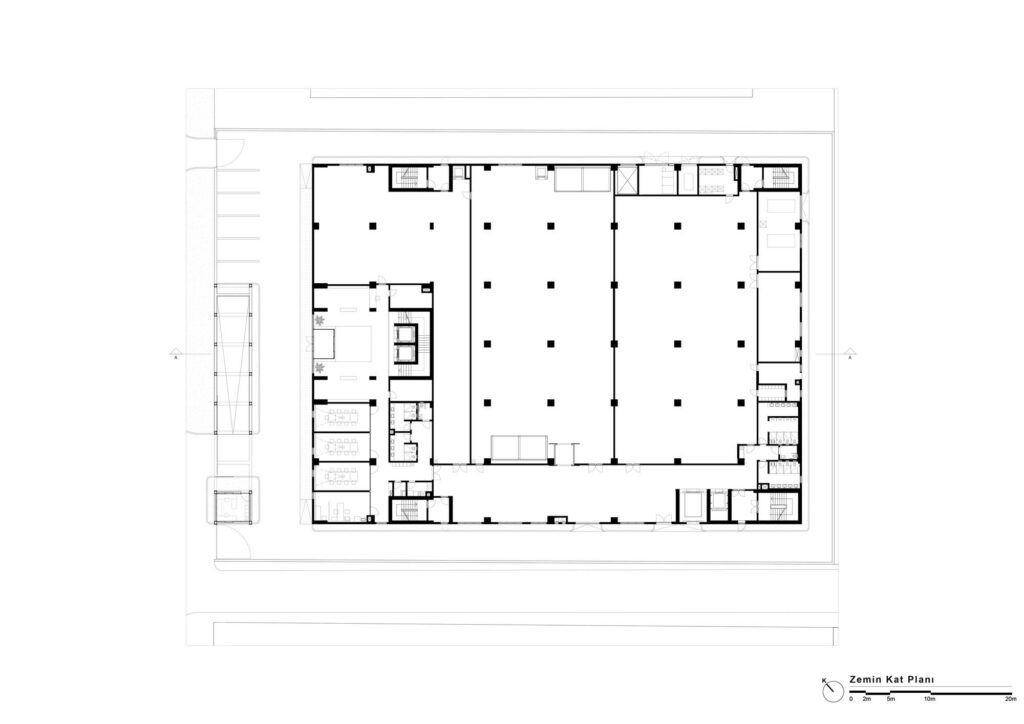
Emko Elektronik Fabrikası
Proje Yeri: Bursa, Nilüfer
Proje Ofisi: Per Se Mimarlık
Proje Tipi: Fabrika
Proje Tipi Grubu: Endüstriyel
Tasarım Ekibi: Ali Derya Dostoğlu, Uğur Özer
Yardımcı: Orkun Beydağı, Berrin Sezer, Nilay Dağlar, Canberk Özcan, Abdülkadir Ata, Enes Keleşmehmet
Ana Yüklenici: Umut İnşaat
Statik Projesi: Salih Zeki Ün Mühendislik
Mekanik Projesi: Çakırcalı Mühendislik
Elektrik Projesi: Çetin Elektrik
Tesisat Projesi: Çakırcalı Mühendislik
Çelik Projesi: Salih Zeki Ün Mühendislik
Altyapı Projesi: Teknoterm Mühendislik
Fotoğraf: Cihan Poçan
Mimari Mesleki Kontrollük: Ali Derya Dostoğlu
Şantiye Yöneticisi: Enis Neziroğlu
Proje Başlangıç Yılı: 2017
Proje Bitiş Yılı: 2018
İnşaat Başlangıç Yılı: 2018
İnşaat Bitiş Yılı: 2021
Arsa Alanı: 4.059 m2
Toplam İnşaat Alanı: 15.967 m2