4/38
Paylaş
Resmi Orjinal Boyutunda Göster
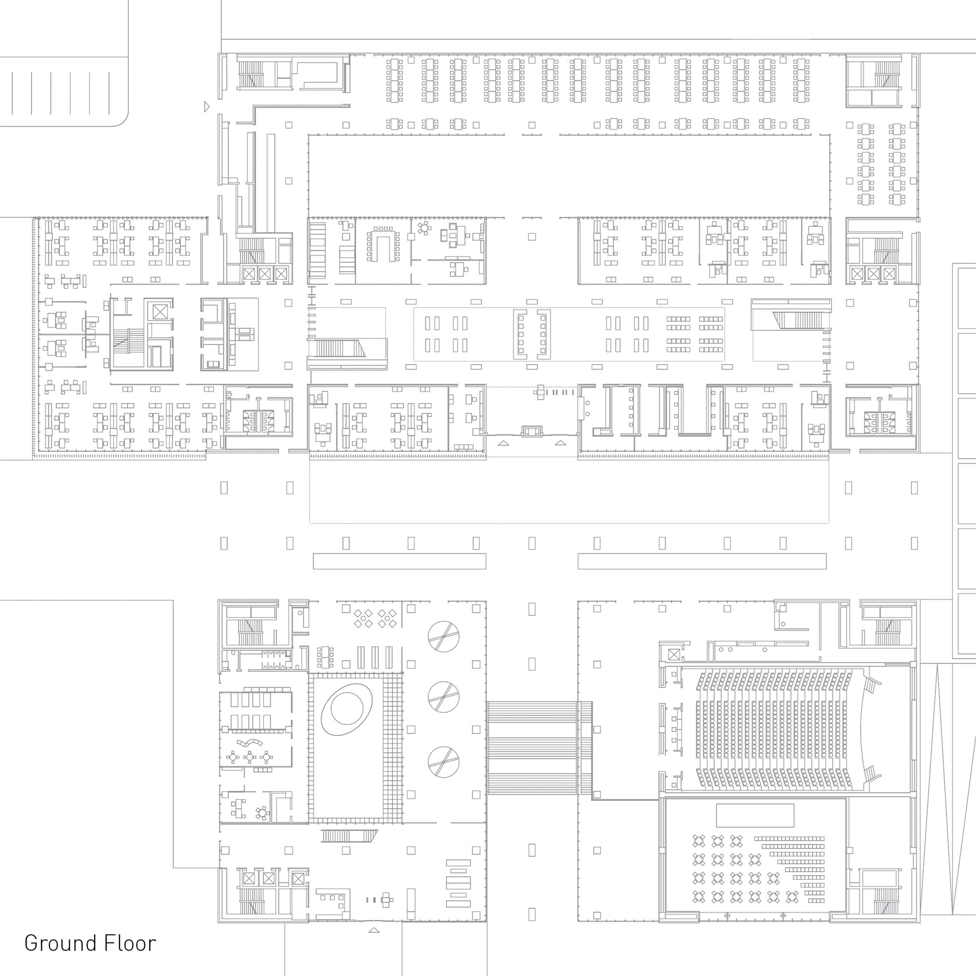
Tekirdag Belediye Kompleksi
Proje Yeri: Tekirdağ
Proje Ofisi: Lift Studio
Proje Tipi: Belediye Hizmet Binası
Proje Tipi Grubu: Kamu Yapısı
Tasarım Ekibi: Oğuzhan Aydın, Sinan Tuncer, Yücel Demir, Semih Yeşilmen
Mimari Proje Ekibi: Hanife Peker
İşveren: Tekirdağ Büyükşehir Belediyesi
Danışman: Hüseyin Kahvecioğlu, Pınar Arabacıoğlu
Ana Yüklenici: Barankaya İnşaat
Peyzaj Mimarlığı: Cey Peyzaj
İç Mekan Projesi: Lift Studio
Konsept Tasarımı: Lift Studio
Uygulama Projesi: Lift Studio
Cephe Tasarımı: Lift Studio
Statik Projesi: Nodus Mühendislik
Mekanik Projesi: ABC Mühendislik
Elektrik Projesi: Cedetaş Mühendislik
Altyapı Projesi: Köroğlu Mühendislik
Fotoğraf: Engin Gerçek
Proje Başlangıç Yılı: 2015
Proje Bitiş Yılı: 2016
İnşaat Başlangıç Yılı: 2016
İnşaat Bitiş Yılı: 2022
Arsa Alanı: 110.000 m²
Toplam İnşaat Alanı: 100.000 m²