11/11
Paylaş
Resmi Orjinal Boyutunda Göster
FT Evi
Project Location: İzmir, Urla
Project Office: Onurcan Çakır Mimarlık
Project Type: Single House
Proje Tipi Grubu: Konut
Tasarım Ekibi: Gülcenur Kalafatçı, Onurcan Çakır, And Akman, Sezen Ergün
Projcet Manager: Onurcan Çakır
Project Start Date: 2021
Project End Date: 2021
Construction End Date: 2022
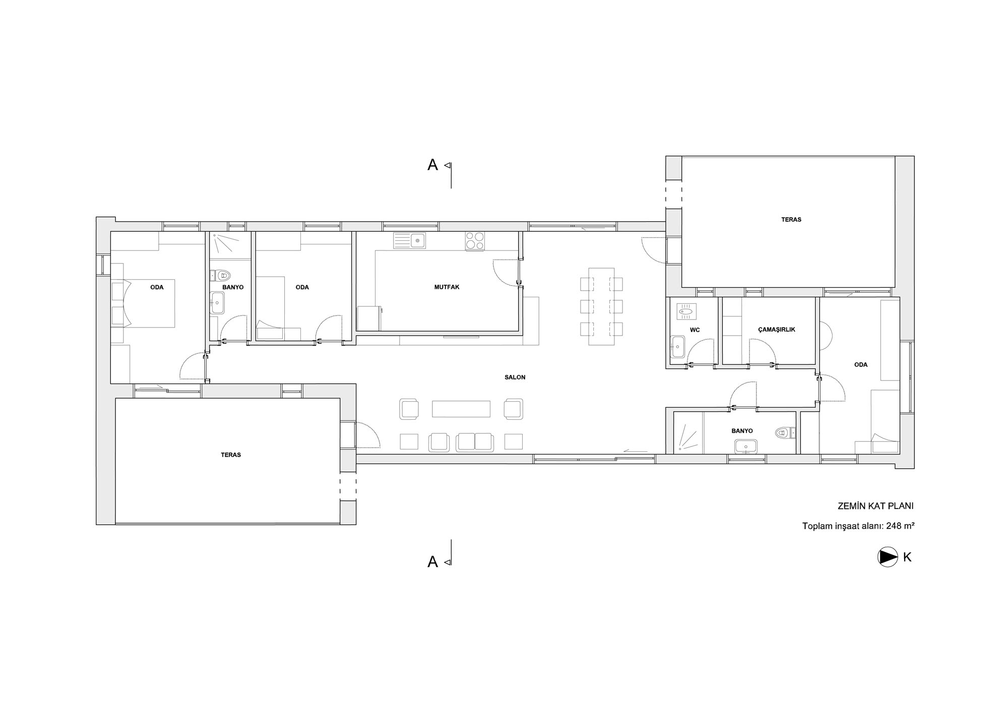
Building Plot Area: 2.426
Total Construction Area: 248