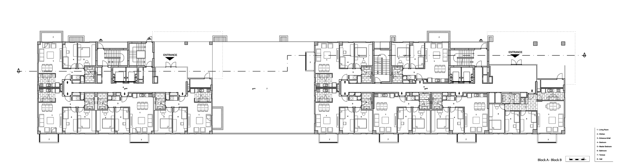
1_A B BLOK PLAN_300 dpi A3.png
41/53
Paylaş
Resmi Orjinal Boyutunda Göster
Kiptas Silivri
Proje Yeri: Silivri, İstanbul
Proje Ofisi: PDG Mimarlar
Proje Tipi: Konut Sitesi / Grubu
Proje Tipi Grubu: Konut
Tasarım Ekibi: Murat Şahin
Mimari Proje Ekibi: Anna Cojocar, Kiptaş Proje Etüd Müdürlüğü, Deniz Yıldırım, Büşra Nur Topyıldız, Can Özkan, Ayhan Öçkaç, Eylem İşler Kahraman, Cengiz Gültek
İşveren: KİPTAŞ, İstanbul Büyükşehir Belediyesi
Fotoğraf: Cemal Emden, Mustafa Alkaç
İnşaat Başlangıç Yılı: 2020
İnşaat Bitiş Yılı: 2022
Arsa Alanı: