1/15
Paylaş
Resmi Orjinal Boyutunda Göster
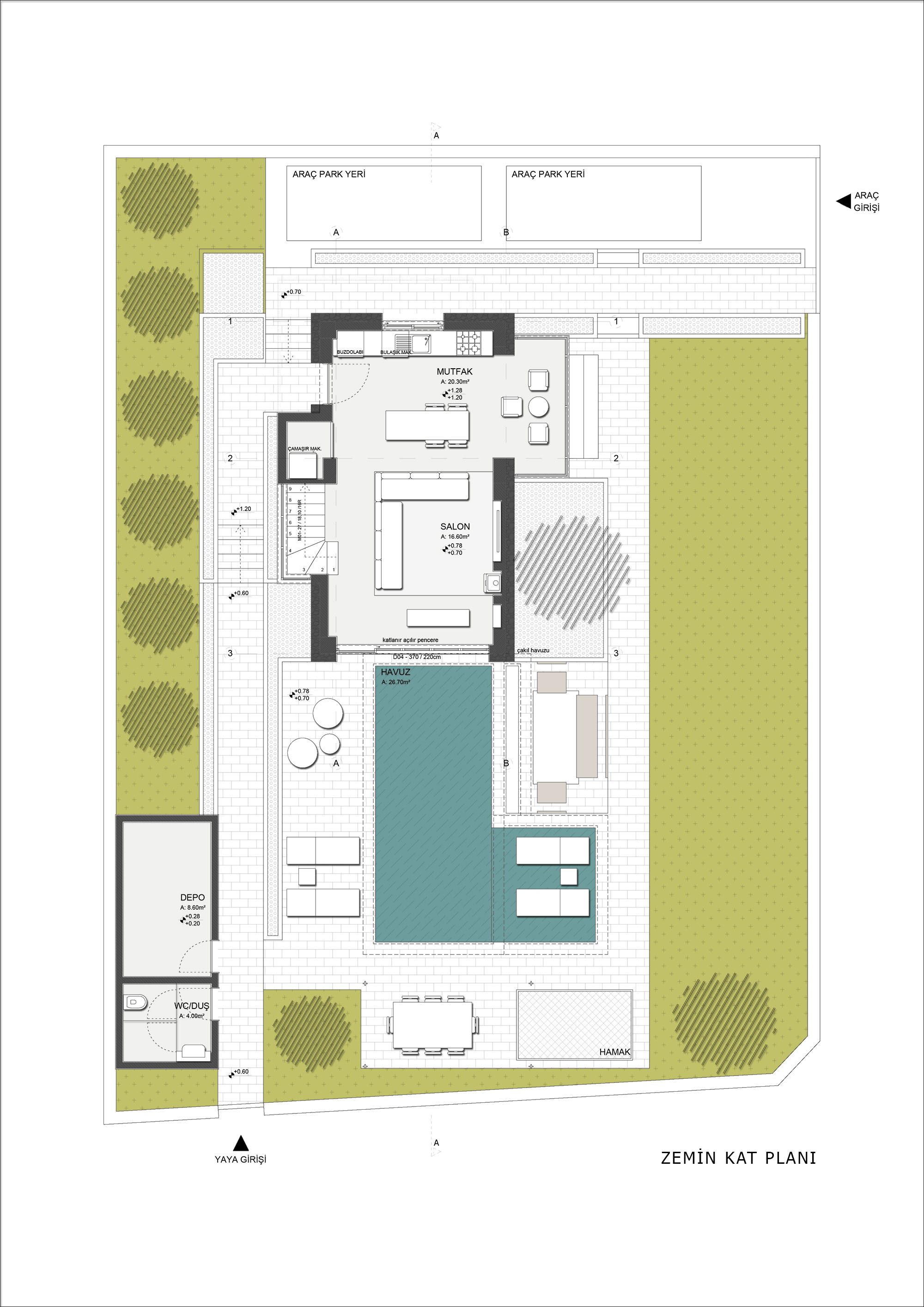
Tunç Evi
Proje Yeri: Fethiye, Muğla
Proje Ofisi: Stüdyo501
Proje Tipi: Tek Ev / Villa
Proje Tipi Grubu: Konut
Tasarım Ekibi: Cenk Çeşmeli, Müge Erkılıç
İşveren: Emre Tunç, Mehmet Tunç
Ana Yüklenici: Mehmet Tunç
Statik Projesi: Tolga Çeşmeli
Fotoğraf: Emre Tunç
Proje Başlangıç Yılı: 2020
Proje Bitiş Yılı: 2021
İnşaat Başlangıç Yılı: 2021
İnşaat Bitiş Yılı: 2022
Arsa Alanı: 402
Toplam İnşaat Alanı: 115