1/19
Paylaş
Resmi Orjinal Boyutunda Göster
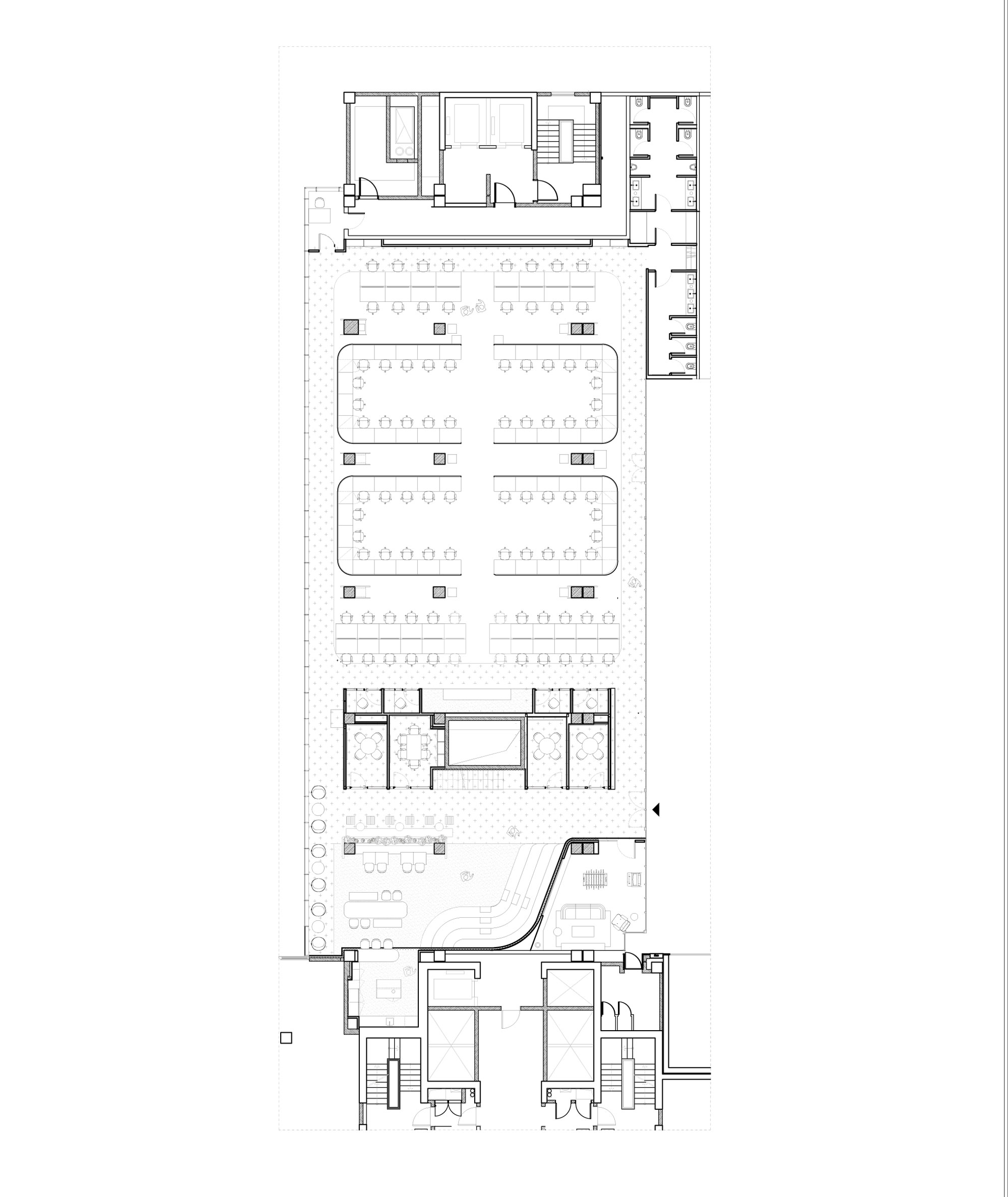
Spyke Games Ofisi
Project Location: Şişli, İstanbul
Project Office: Habif Mimarlık
Project Type: Offices
Proje Tipi Grubu: Commercial
Architectural Project Team: Erhan Kılıç, Hakan Habif, Ecem Atatüre
Photography: İbrahim Özbunar
Construction End Date: 2022
Total Construction Area: