1/11
Paylaş
Resmi Orjinal Boyutunda Göster
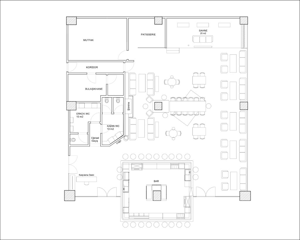
Gufo Gastro
Proje Yeri: Muğla
Proje Ofisi: Seba Mimarlık
Proje Tipi: Restoran / Kafe / Bar
Proje Tipi Grubu: Ticari
Tasarım Ekibi: Burcu Seba
İşveren: Gufo Gastro
Ana Yüklenici: Gufo Gastro
Fotoğraf: Erdinç Özal
Proje Başlangıç Yılı: 2022
Proje Bitiş Yılı: 2022
İnşaat Başlangıç Yılı: 2022
İnşaat Bitiş Yılı: 2022
Arsa Alanı: 320
Toplam İnşaat Alanı: 320