27/27
Paylaş
Resmi Orjinal Boyutunda Göster
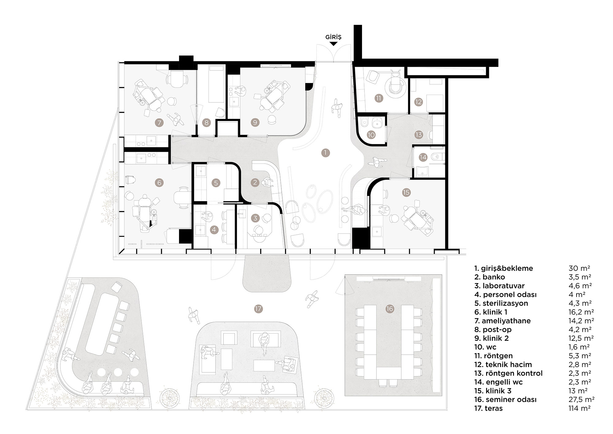
HAB Ağız ve Diş Sağlığı Polikliniği
Proje Yeri: İstanbul
Proje Ofisi: İpek Baycan Architects
Proje Tipi: Hastane / Poliklinik
Proje Tipi Grubu: Sağlık Yapısı
Tasarım Ekibi: İpek Baycan Magriso
Mimari Proje Ekibi: İpek Baycan Magriso, Simge Özcan
İşveren: Vadi HAB Dental Klinik
Ana Yüklenici: XPERA
Fotoğraf: ALTKAT Architectural Photography
Proje Başlangıç Yılı: 2021
Proje Bitiş Yılı: 2021
İnşaat Başlangıç Yılı: 2021
İnşaat Bitiş Yılı: 2022
Toplam İnşaat Alanı: 135 m²