2/15
Paylaş
Resmi Orjinal Boyutunda Göster
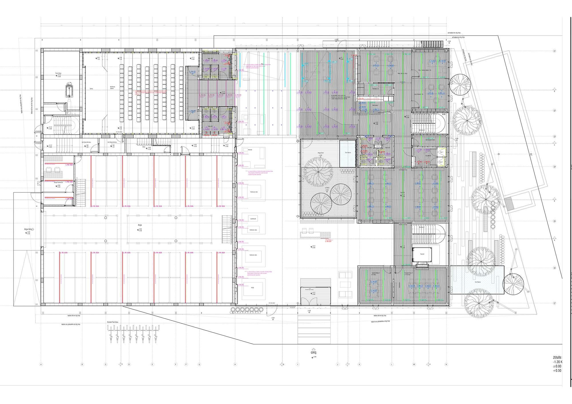
FNN Sürdürülebilirlik Merkezi
Proje Yeri: Ceyhan, Adana
Proje Ofisi: Acararch
Ana Yüklenici: Yoo Mimarlık
Peyzaj Mimarlığı: Acararch
İç Mekan Projesi: Acararch
Aydınlatma Projesi: LINE Lighting Design, Mustafa Akkaya
Statik Projesi: İntaç Mühendislik
Mekanik Projesi: Metasarım Proje Mühendislik
Elektrik Projesi: Zenith Proje Mühendislik
Çelik Projesi: İntaç Mühendislik
Yangın Tahliye Projesi: YAN-MA-DAN Ltd
Fotoğraf: İbrahim Özbunar
Proje Başlangıç Yılı: 2017
Proje Bitiş Yılı: 2019
İnşaat Başlangıç Yılı: 2019
İnşaat Bitiş Yılı: 2020
Arsa Alanı: 58882 m2
Toplam İnşaat Alanı: 1871 m2