16/21
Paylaş
Resmi Orjinal Boyutunda Göster
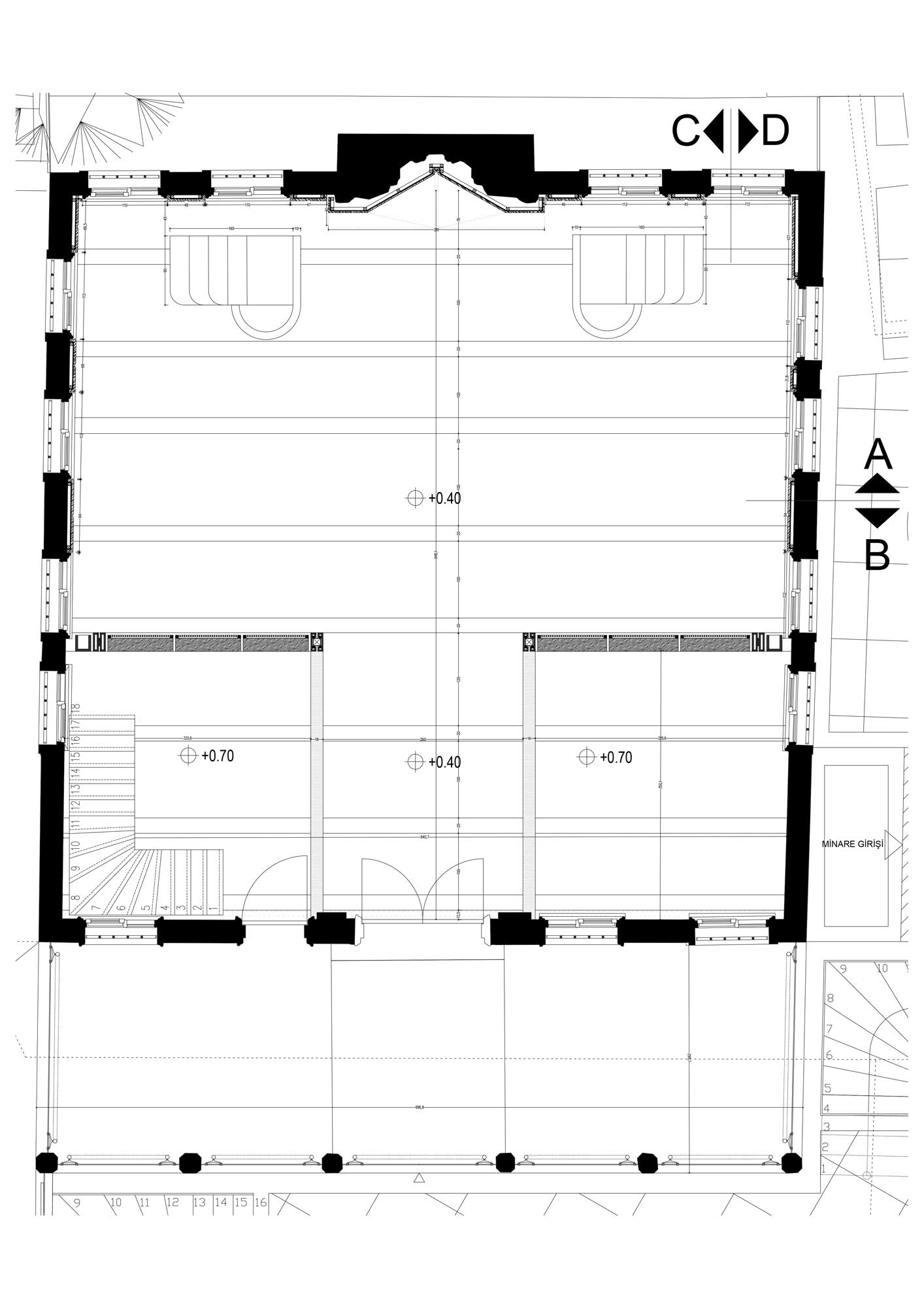
Üsküdar Mustafa Kavsar Baba Camii Yenileme Projesi
Proje Yeri: Üsküdar, İstanbul
Proje Ofisi: Kayabay Mimarlık
Proje Tipi: Dini Yapı
Proje Tipi Grubu: Cami / Mescit
Tasarım Ekibi: Özgür Kayabay
Mimari Proje Ekibi: Özgür Kayabay, Berkayhan Soybora
İşveren: Kalyon Vakfı
Ana Yüklenici: Kalyon İnşaat
Uygulama Projesi: Kayabay Mimarlık
Fotoğraf: Sahir Uğur Eren
Proje Başlangıç Yılı: 2021
Proje Bitiş Yılı: 2021
İnşaat Başlangıç Yılı: 2021
İnşaat Bitiş Yılı: 2022
Toplam İnşaat Alanı: 160 m2