3/31
Paylaş
Resmi Orjinal Boyutunda Göster
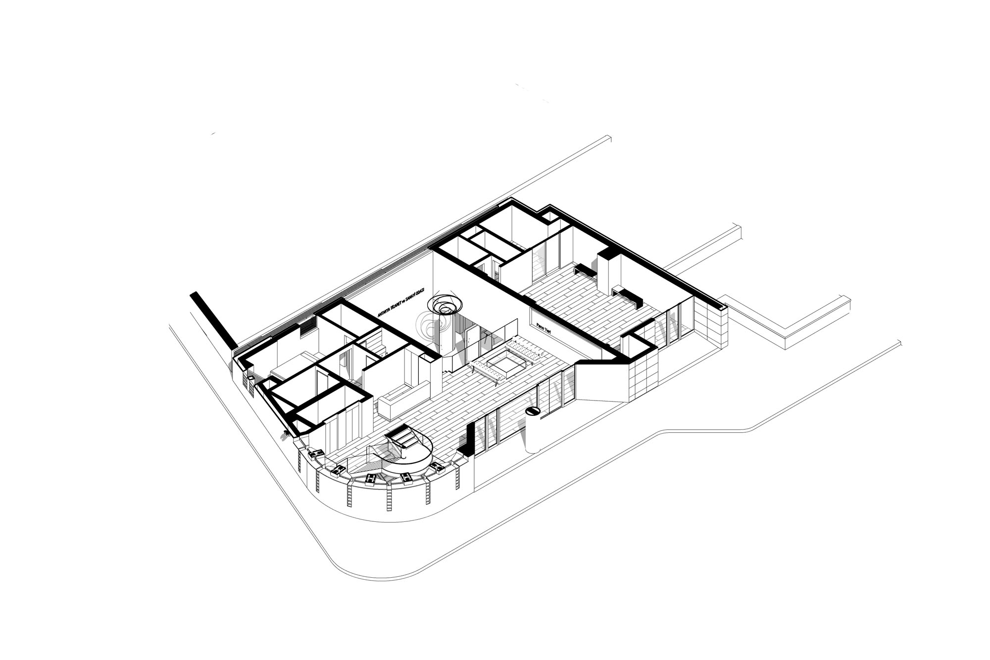
Antakya Ticaret Odası
Proje Yeri: Antakya, Hatay
Proje Ofisi: Çinici Mimarlık
Proje Tipi: Kamu Yönetim Binası
Proje Tipi Grubu: Kamu Yapısı
Mimari Proje Ekibi: Can Çinici, Cem Katkat, Begüm Bilgin Yılmaz, Derya Agüday, Selim Koytak
İşveren: Antakya Ticaret ve Sanayi Odası
Ana Yüklenici: Yüksel Proje
İç Mekan Projesi: Çinici Mimarlık
Konsept Tasarımı: Çinici Mimarlık
Uygulama Projesi: Çinici Mimarlık
Cephe Tasarımı: Çinici Mimarlık
Aydınlatma Projesi: Tepta Aydınlatma
Statik Projesi: Yapı Akademisi
Mekanik Projesi: Elmaksan Mühendislik
Elektrik Projesi: Elektra Mühendislik
Fotoğraf: Çinici Mimarlık Arşivi, Ömer Selçuk Baz
Mimari Mesleki Kontrollük: Çinici Mimarlık
Şantiye Yöneticisi: Kubilay Kaya
Proje Başlangıç Yılı: 2014
Proje Bitiş Yılı: 2016
İnşaat Başlangıç Yılı: 2016
İnşaat Bitiş Yılı: 2019
Arsa Alanı: 395.5 m2
Toplam İnşaat Alanı: 2137 m2