1/8
Paylaş
Resmi Orjinal Boyutunda Göster
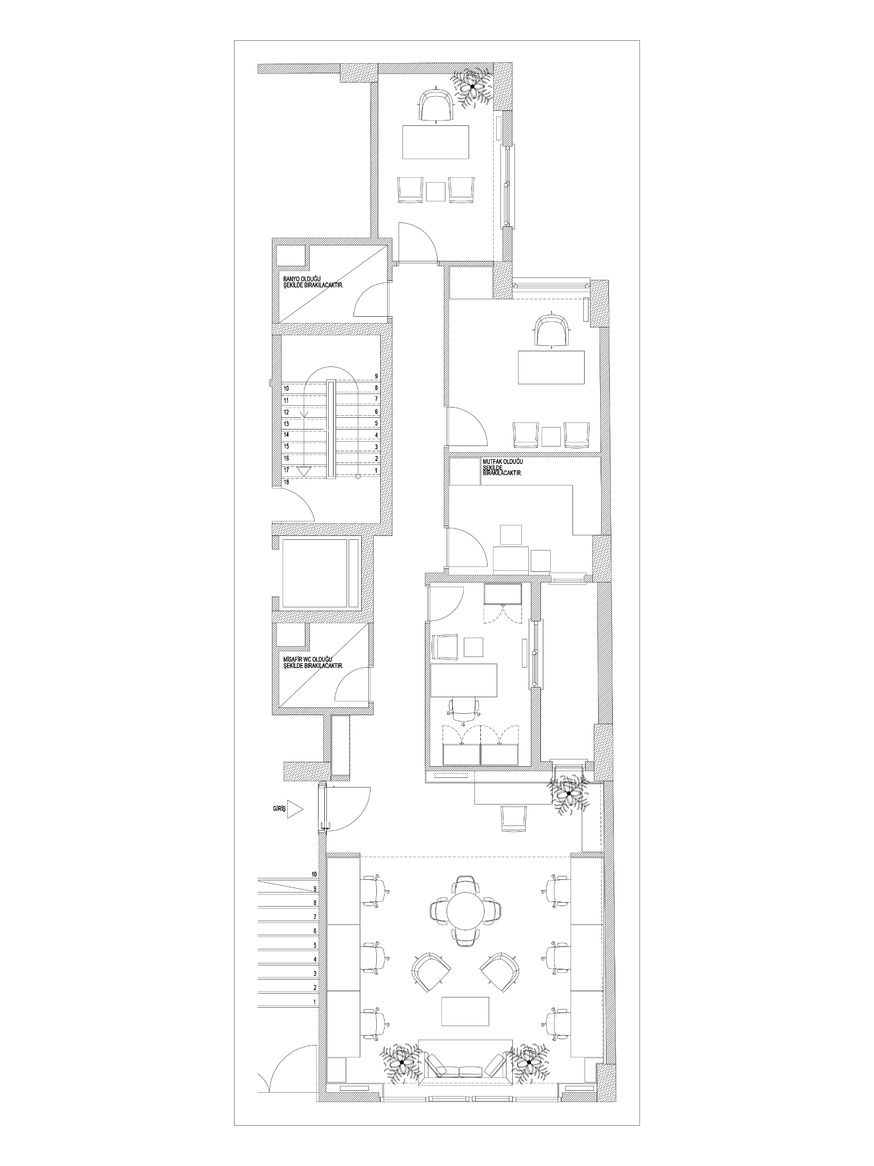
Parfüm Tasarım Atölyesi
Project Location: Nişantaşı, İstanbul
Project Office: REDA
Project Type: Diğer
Proje Tipi Grubu: Commercial
Tasarım Ekibi: Çağıl Akçurin
Architectural Project Team: Çağıl Akçurin
Employer: Birgül Ulucan Öztürk, Gamze Ulucan
Yardımcı: Levent Ersu
Ana Yüklenici: REDA Contract
Photography: Kadir Aşnaz
Project Start Date: 2021
Project End Date: 2021
Construction Start Date: 2022
Construction End Date: 2022
Total Construction Area: 180,00 m2