1/14
Paylaş
Resmi Orjinal Boyutunda Göster
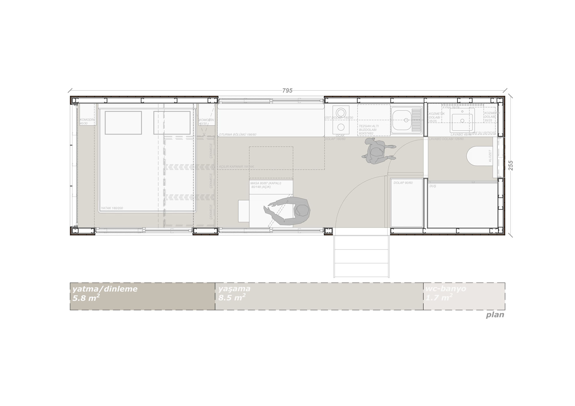
Lugna Living
Proje Ofisi: Boran Ekinci Mimarlık
Proje Tipi: Barınma
Proje Tipi Grubu: Konut
Mimari Proje Ekibi: Boran Ekinci
İşveren: Eren Sarıoğlu
Yardımcı: Mustafa Kaan Uca
Ana Yüklenici: Essa Yapı
Uygulama Projesi: Boran Ekinci Mimarlık
Proje Başlangıç Yılı: 2021
Proje Bitiş Yılı: 2021
İnşaat Başlangıç Yılı: 2022