3/15
Paylaş
Resmi Orjinal Boyutunda Göster
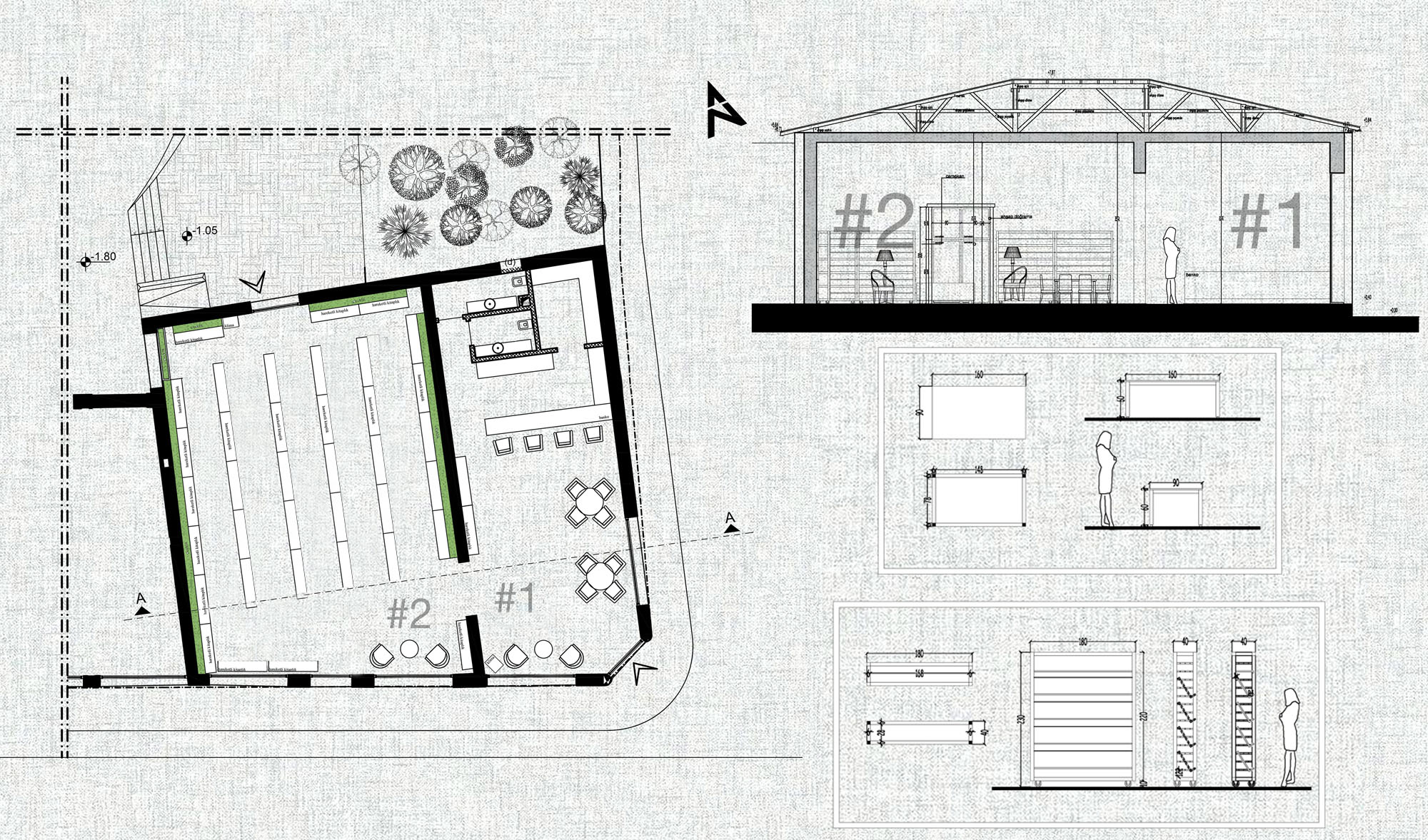
Tuzhan 1881 GG Fikir ve Kültür Dükkânı
Proje Yeri: Adana
Proje Ofisi: Eren Tümer Mimarlık Ofisi [ETMO]
Proje Tipi Grubu: Kültür Yapısı
Tasarım Ekibi: Eren Tümer, Ece Sultan Karacık
İşveren: Gökhan Gündoğdu, Gündoğdu Vakfı
Konsept Tasarımı: Eren Tümer Mimarlık Ofisi [ETMO]
Uygulama Projesi: Eren Tümer Mimarlık Ofisi [ETMO]
Statik Projesi: Murtaza Tan
Fotoğraf: Alperen Bilgili
Proje Başlangıç Yılı: 2021
Proje Bitiş Yılı: 2021
İnşaat Başlangıç Yılı: 2021
İnşaat Bitiş Yılı: 2022
Toplam İnşaat Alanı: 225 m2