2/28
Paylaş
Resmi Orjinal Boyutunda Göster
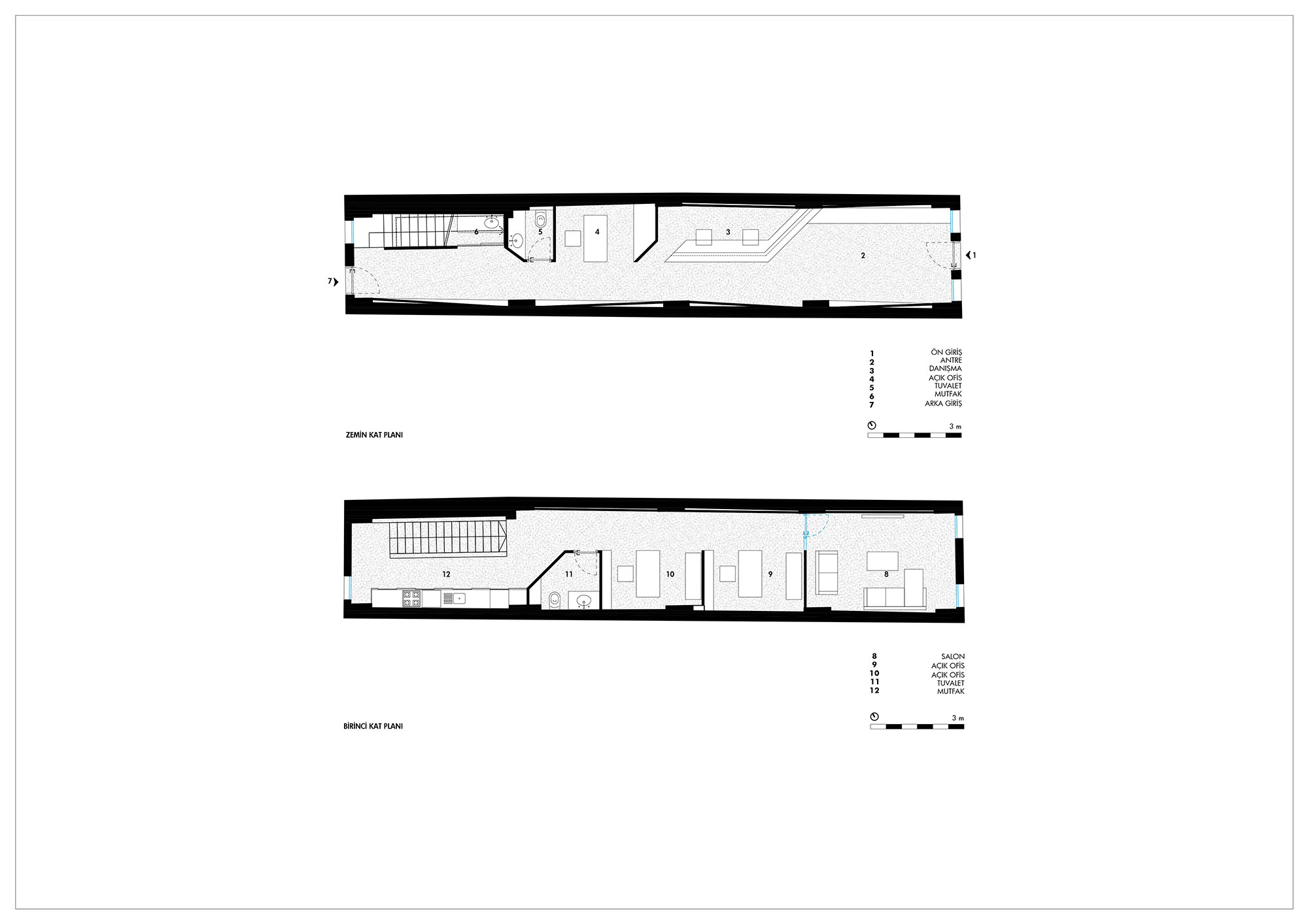
Best Choice Property and Yacht Ofisi
Proje Yeri: Marmaris
Proje Ofisi: Deren Uysal Architecture
Tasarım Ekibi: Deren Uysal
Mimari Proje Ekibi: Deren Uysal
İşveren: Best Choice Property and Yacht
Danışman: Levent Uysal, Halil Atlı
Yardımcı: Selen Özdoğan, Kağan Şahin, Belen Uygur, Kerem Yücel
Ana Yüklenici: Best Choice Property and Yacht
İç Mekan Projesi: Deren Uysal Architecture
Konsept Tasarımı: Deren Uysal Architecture
Uygulama Projesi: Deren Uysal Architecture
Grafik Tasarım: Selen Özdoğan
Fotoğraf: Selen Özdoğan, Deren Uysal
Proje Başlangıç Yılı: 2021
Proje Bitiş Yılı: 2021
İnşaat Başlangıç Yılı: 2021
İnşaat Bitiş Yılı: 2021
Toplam İnşaat Alanı: 270 m²