17/17
Paylaş
Resmi Orjinal Boyutunda Göster
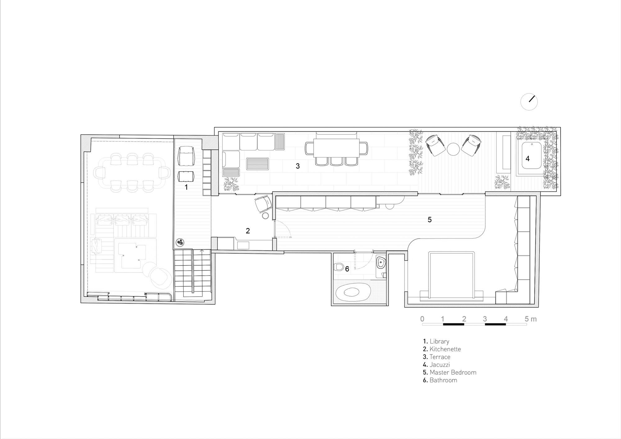
A123_Penthouse
Project Location: Kadıköy, İstanbul
Project Office: r.a.f. studio
Tasarım Ekibi: Hasan Agah Erkan, Mustafa Anıl Erkan
Ana Yüklenici: r.a.f. studio
Interior Architecture: r.a.f. studio
Concept Design: r.a.f. studio
Construction Drawings: r.a.f. studio
Photography: Egemen Karakaya