19/23
Paylaş
Resmi Orjinal Boyutunda Göster
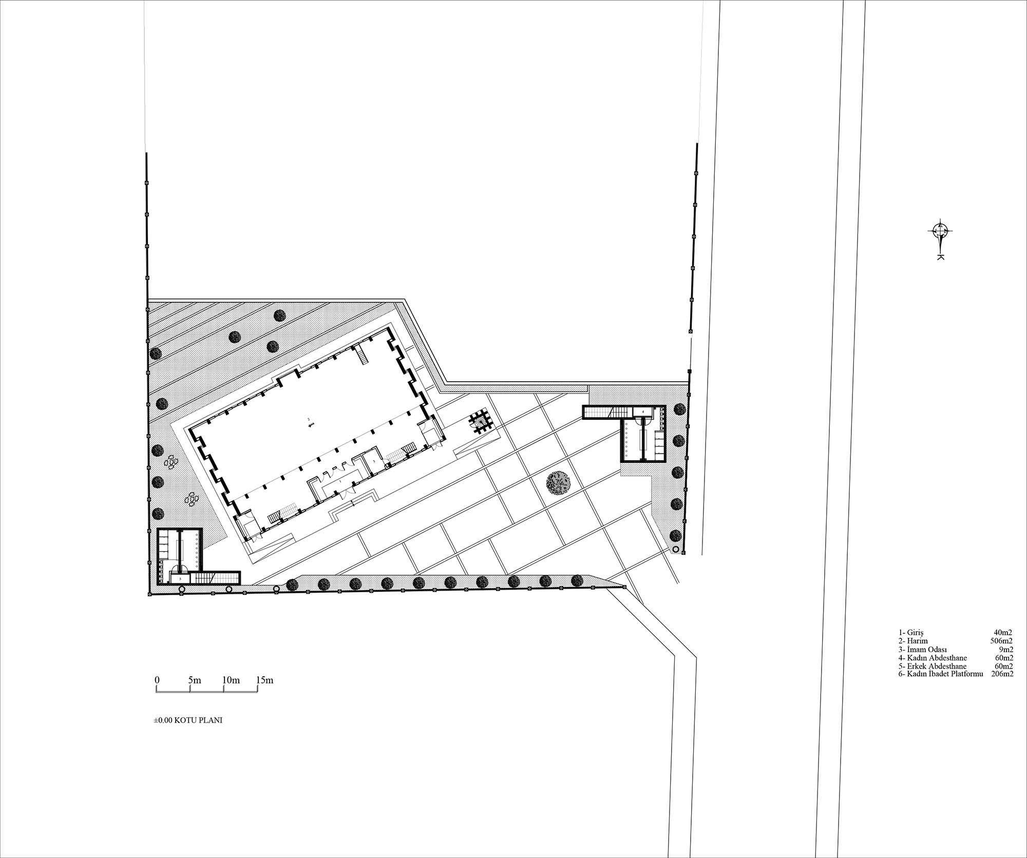
KaramurselAkcakocaCamii
Proje Yeri: Karamürsel, Kocaeli (İzmit)
Proje Ofisi: İbrahim Türkeri – Gönül Karademir Mimarlık
Proje Tipi: Cami / Mescit
Proje Tipi Grubu: Dini Yapı
Tasarım Ekibi: İbrahim Türkeri, Gönül Karademir