9/18
Paylaş
Resmi Orjinal Boyutunda Göster
PULAA
Project Location: Balıkesir, semihgulmimarlik
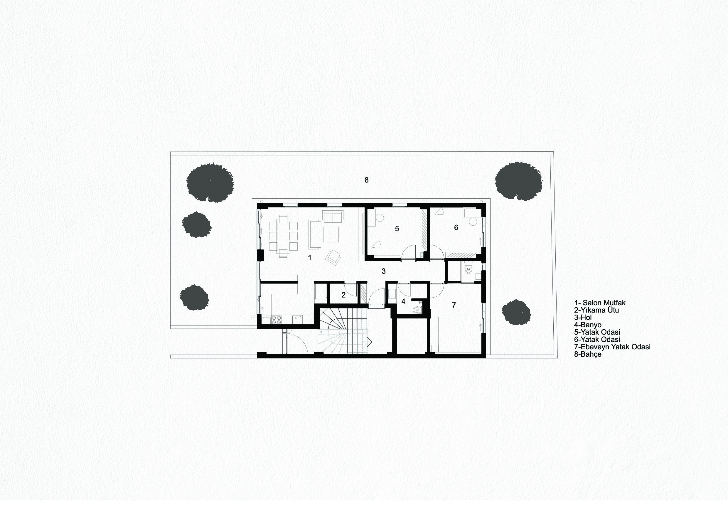
Project Type: Apartment
Proje Tipi Grubu: Konut
Tasarım Ekibi: Bünyamin Semih Gül
Employer: Halil Gül İnşaat
Ana Yüklenici: Halil Gül İnşaat
Peyzaj Mimarlığı: Balıkesir Defne Peyzaj Fidancılık
Construction Drawings: semihgulmimarlik
Structural Project: HMS Mühendislik Mustafa Şener
Mechanical Project: Mustafa Serhat Mertoğlu
Electrical Project: Şazimet Köse
Plumbing Project: Mustafa Serhat Mertoğlu
Project Start Date:
Project End Date: 2021
Construction Start Date: 2022
Construction End Date: 2023
Building Plot Area: 265,7 m2
Total Construction Area: 513.3 m2